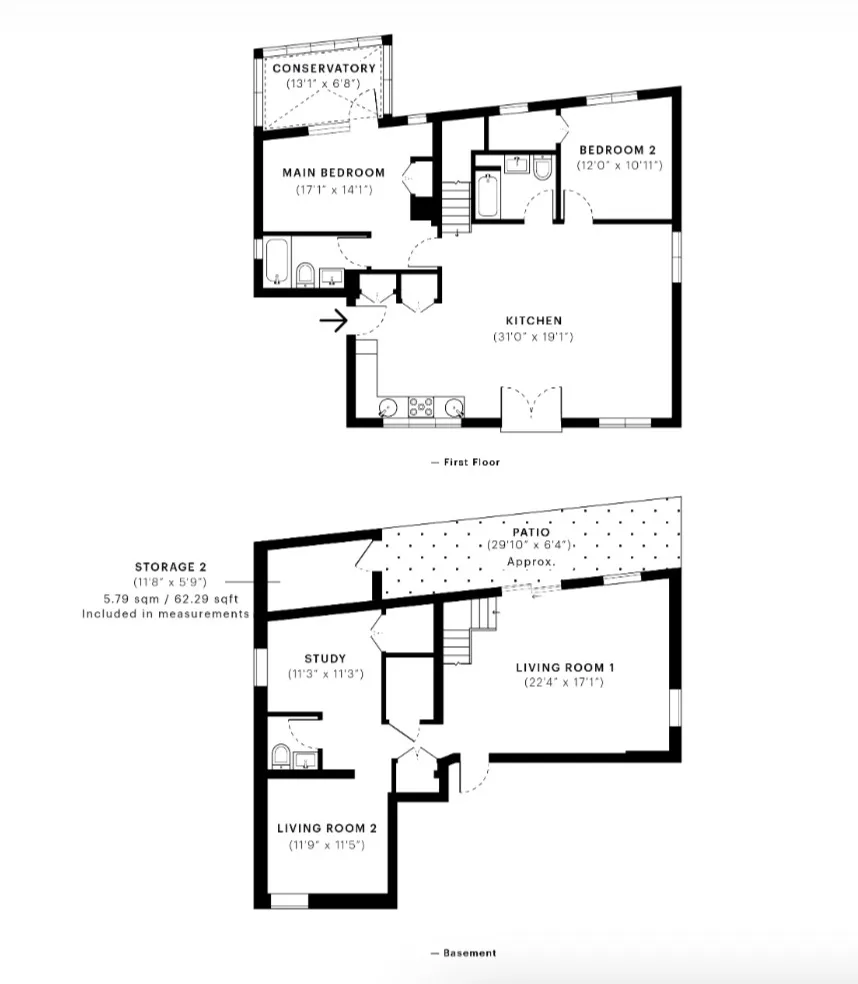
2,318 ft²
$555 per ft²
9 rooms
2 beds
2.5 baths
Three-family home
- Mapleton
Resale
reported sale
Sold on 9/24/2024
Not yet verified by closing records
Seller's agents
This home has been saved by 14 users.
Listing by Oxford Property Group, Limited Liability Broker, 401 New Karner Road, Albany, NY 12205
Common charges
Not applicable
Estimated payment
Taxes
$1,339/mo
Tax abatement
No info
About
Seller’s agent
description
Welcome to 2019 57th a huge 2318sqFt duplex in the heart of mapleton / borough park!
2019 57th is a brand new construction duplex condominium building chock full of top of the line features, details & high quality finishes. This is a legal 2 bedroom / 2.5 bathroom duplex with a full greenhouse accessible from the master bedroom. There are also three gorgeous rooms in the basement with additional laundry room attached to the outdoor space with storage room.
Policies
Sorry, policy info isn’t available right now. Check back later.
Home features
Central air
Dishwasher
Hardwood floors
Private outdoor space
Balcony, Garden, Roof deck, Roof rights, Terrace
View
City, Garden, Park
Washer/dryer
Building amenities
Services and facilities
Bike room
Laundry in building
Wheelchair access
Wellness and recreation
No info on wellness and recreation
Shared outdoor space
Roof deck
About the building
2019 57th Street
2019 57th Street, Brooklyn, NY 11204
- units
- stories
- built
For sale
0 available units for saleFor rent
0 available units for rentDocuments and permits
View documents and permitsProperty history
- Price Change: No changes
- Days on market: 580 daysThis is the number of days the listing has been on StreetEasy.
| Date | Price | Event |
|---|---|---|
8/19/2024 | $1,298,268 | |
9/25/2024 | $1,286,700 | Sold by Oxford Property Group |
9/24/2024 | $1,286,700 | No longer available |
1/8/2024 | $1,286,700 | In contract |
6/7/2022 | $1,286,700 | Listed by Oxford Property Group |
Past listing photos
Sign in to take a closer look at how this home compares to similar homes.
Explore Mapleton
Transit
| Location | Distance |
|---|---|
Fat Bay Parkway–22nd Av | 0.27 miles |
Nat 20th Av | 0.33 miles |
Fat Av I | 0.43 miles |
Fat Av N | 0.46 miles |
Nat 18th Av | 0.46 miles |

























































































