$3,950
For Rent
Base rent only. For total monthly price and additional fees, see .
Rented 11/24/2024
1,200 ft²
$39 per ft²
5 rooms
2 beds
1 bath
Three-family home
- Central Harlem
Under NYC law, you can't be charged a broker fee if you didn't hire a broker.
Listed By
This home has been saved by 8 users.
Listing by Perry Associates NYC Inc, Corporate Broker, 315 Madison Avenue, New York, NY 10016
Unavailable
Rented on 11/24/2024
Days on market
7 days
Last price change
No changes
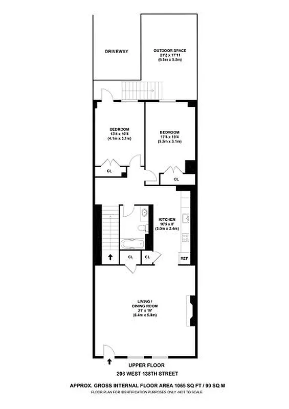
About
No Broker Fee!
A Magnificent Home on Strivers’ Row !
Rarely available. This floor through is loaded with class and character. So much original detail combined with all the amenities: Central air and heat, washer dryer, and access to a shared outdoor patio.
The grand living room features majestic soaring 13 ft ceilings, original shutters, pocket door, fireplace, and wainscoting.
Policies
Sorry, policy info isn’t available right now. Check back later.
Home features
Central air
Dishwasher
Fireplace
Hardwood floors
Private outdoor space
Terrace
View
City
Washer/dryer
Building amenities
Services and facilities
No info on services and facilities
Wellness and recreation
No info on wellness and recreation
Shared outdoor space
Courtyard
About the building
206 West 138th Street
206 West 138th Street, New York, NY 10030
3 units
3 stories
1910 built
Property history
Prices shown are base rent only. For total monthly price and additional fees, see .
| Date | Base rent | Event |
|---|---|---|
11/24/2024 | $3,950 | Rented by Perry Associates NYC Inc |
11/22/2024 | $3,950 | In contract |
11/15/2024 | $3,950 | Listed by Perry Associates NYC Inc |
3/3/2023 | $3,800 | |
3/2/2023 | $3,800 |
Past listing photos
Sign in to take a closer look at how this home compares to similar homes.
Explore Central Harlem
Transit
| Location | Distance |
|---|---|
BCat 135th St | 0.23 miles |
23at 135th St | 0.24 miles |
3at 145th St | 0.4 miles |
ABCDat 145th St | 0.46 miles |
3at Harlem–148th St | 0.57 miles |
About Central Harlem
Rental prices shown are base rent before any fees. Visit listings for cost and fees breakdown.
SalesMedian asking price
2 beds
$787K
RentalsMedian asking base rent
2 beds
$3,349
Harlem begins directly above Central Park, where you will find busy thoroughfares adjacent to quiet tree-lined blocks lined with brownstones and pre-war apartment buildings.
Learn more about Central HarlemSimilar homes
Prices shown are base rent only and don't include any fees. Visit each listing to see a complete cost breakdown.
Similar Homes looks at ad spend and other factors like location, price, and number of beds and baths.


































































































































