- ft²
5 rooms
2 beds
2 baths
Co-op
- Upper West Side
Resale
reported sale
Sold on 10/14/2025
Not yet verified by closing records
Seller's agents
This home has been saved by 660 users.
Listing by The Agency, Real Estate Principal Office, 88 University Place, New York, NY 10003
Maintenance fees
$2,041/mo
Estimated payment
Taxes
Included in maintenance fees
Tax abatement
No info
About
Seller’s agent
description
BACK ON MARKET.
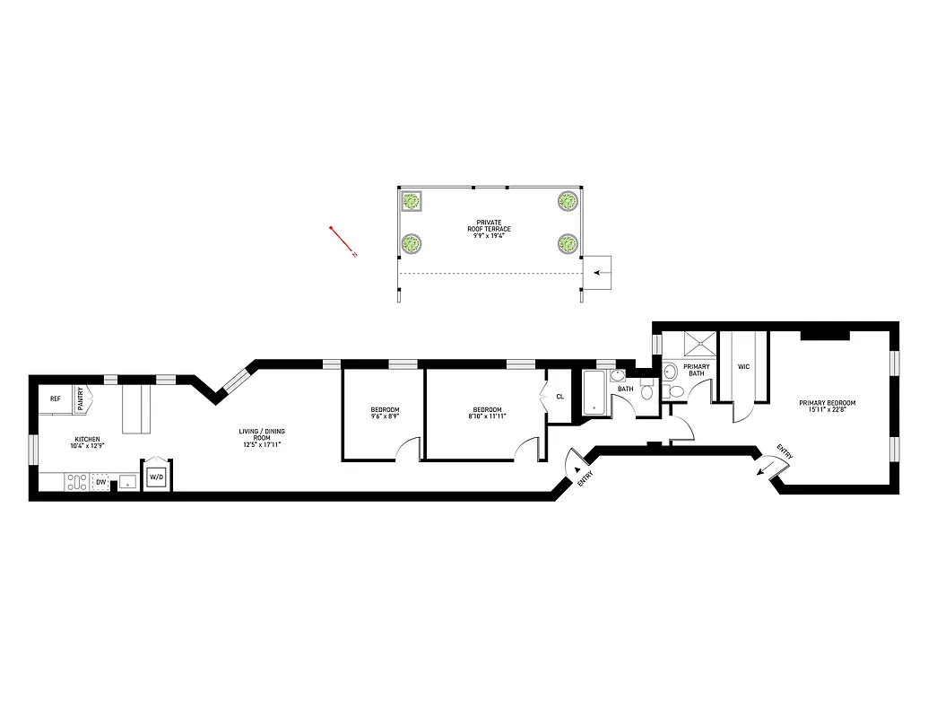
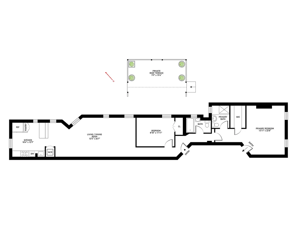
Welcome Home to 210 West 85th Street Residence 5W. This exquisite, floor-through home, comprising 2 bedrooms and 2 bathrooms, presents a unique opportunity to buy in a boutique Brownstone co-op on a quiet, tree-lined street just blocks from Central Park and all that the Upper West Side has to offer.
As you enter the home, you’ll be greeted by 10’ ceilings adorned with exposed wood beams, and an expansive open floor plan.
Policies
Pets allowed
Cats and dogs allowed
Home features
Dishwasher
Hardwood floors
Private outdoor space
Roof deck, Roof rights
View
City
Washer/dryer
Building amenities
Services and facilities
Bike room
Storage space
Wellness and recreation
No info on wellness and recreation
Shared outdoor space
Roof deck
About the building
210 West 85th Street
210 West 85th Street, New York, NY 10024
Complex:
202-214 West 85th Street- units
- stories
- built
For sale
0 available units for saleFor rent
0 available units for rentDocuments and permits
View documents and permitsProperty history
- Price Change: ↓ $60,000 (-5.1%) on 6/13/25
- Days on market: 198 daysThis is the number of days the listing has been on StreetEasy.
| Date | Price | Event |
|---|---|---|
10/14/2025 | $1,125,000 | Sold by The Agency |
8/1/2025 | $1,125,000 | In contract |
6/13/2025 | $1,125,000 | Price decreased by 5% |
5/21/2025 | $1,185,000 | Price decreased by 5% |
4/16/2025 | $1,245,000 | Listed by The Agency |
Past listing photos
Sign in to take a closer look at how this home compares to similar homes.
Explore Upper West Side
Transit
| Location | Distance |
|---|---|
1at 86th St | under 500 feet |
1at 79th St | 0.27 miles |
BCat 86th St | 0.37 miles |
BCat 81st St–Museum of Natural History | 0.41 miles |
123at 96th St | 0.44 miles |
About Upper West Side
Rental prices shown are base rent before any fees. Visit listings for cost and fees breakdown.
SalesMedian asking price
2 beds
$1.66M
RentalsMedian asking base rent
2 beds
$6,295
Sandwiched between two beautiful parks, the Upper West Side is one of the greenest spots in Manhattan. For that reason, it is a perennial favorite. The Upper West Side is relaxed, but never dull. There are plenty of low-key bars and restaurants to frequent along Amsterdam Avenue, and Broadway is an always-bustling commercial center. The wide, tree-lined streets still boast many mom-and-pop stores. Less posh than the Upper East Side, it is more easily accessible by public transportation, and real estate prices are just as, if not more, expensive.
Learn more about Upper West Side





































































































































































