View this home virtually
- ft²
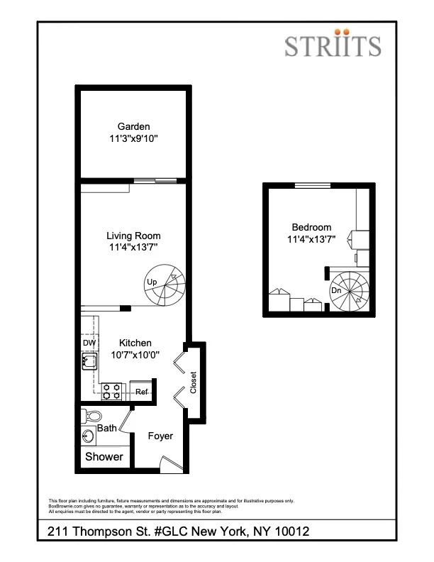
3 rooms
1 bed
1 bath
Co-op
- Greenwich Village
Resale
recorded sale
Sold on 9/19/2024
Verified by closing records
Last listed for $730,000
Seller's agent
This home has been saved by 78 users.
Listing by STRIITS LLC, Real Estate Principal Office, 345 Est 93rd Street, New York, NY 10128
Maintenance fees
$1,394/mo
Estimated payment
$5,314/mo
Taxes
Included in maintenance fees
Tax abatement
No info
About
Sellerâs agent
description
Stunning split-level loft-like one bedroom apartment with a private garden in Greenwich Village. This unique space situated on Thompson Street in the quiet back of the building and enjoys generous natural light with a western exposure and outdoor space. Fully renovated kitchen with all new full-size appliances, including a dishwasher. Other features include lovely hardwood floors, high ceiling hight, through-wall air conditioning.
Policies
Co-purchase allowed
Gifts allowed
Guarantors accepted
Pied-a-terre allowed
Sublets allowed
Home features
Dishwasher
Hardwood floors
Private outdoor space
Garden
View
City, Garden
Building amenities
Services and facilities
Doorman
Part-time
Elevator
Laundry in building
Live-in super
Wellness and recreation
No info on wellness and recreation
Shared outdoor space
No info on shared outdoor space
About the building
211 Thompson Street
211 Thompson Street, New York, NY 10012
96 units
7 stories
1975 built
For sale
3 available units for saleFor rent
1 available units for rentDocuments and permits
View documents and permitsProperty history
- Price Change: No changes
- Days on market: 42 days
| Date | Price | Event |
|---|---|---|
9/19/2024 | $715,000 | Sold by STRIITS LLC |
4/22/2024 | $730,000 | In contract |
3/11/2024 | $730,000 | Listed by STRIITS LLC |
3/8/2010 | $495,000 | |
3/11/2010 | $525,000 |
Past listing photos
Sign in to take a closer look at how this home compares to similar homes.
Explore Greenwich Village
Transit
| Location | Distance |
|---|---|
ABCDEFMat West 4th St | 0.17 miles |
BDFM6at BroadwayâLafayette St | 0.29 miles |
1at Houston St | 0.29 miles |
CEat Spring St | 0.3 miles |
BDFM6at Bleecker St | 0.32 miles |
About Greenwich Village
Rental prices shown are base rent before any fees. Visit listings for cost and fees breakdown.
SalesMedian asking price
1 bed
$1.41M
RentalsMedian asking base rent
1 bed
$5,500
Greenwich Village perfectly combines a bit of the East Village's glorified grunge with a bit of the West Village's tony charm. The birthplace of the beatnik movement and home to NYU, the neighborhood offers something for all its eclectic residents. You'll find new restaurants, indie movie theaters and comedy clubs around the corner from quiet blocks full of big brownstones and well-kept window boxes. Whether it's a 24-hour falafel joint, a dark downstairs bar, or upscale furniture shops, the neighborhood appeals to anyone who relishes the culture, history and activity of the city.
Learn more about Greenwich Village


































































































