$8,000
For Rent
Base rent only. For total monthly price and additional fees, see .
Rented 3/17/2023
- ft²
6 rooms
3 beds
2.5 baths
Condop
- Upper West Side
Under NYC law, you can't be charged a broker fee if you didn't hire a broker.
Listed By
This home has been saved by 115 users.
Listing by Property Profile Inc, Corporate Broker, 1 Town House Place, Great Neck, NY 11021
Unavailable
Rented on 3/17/2023
Days on market
34 days
Last price change
No changes
About
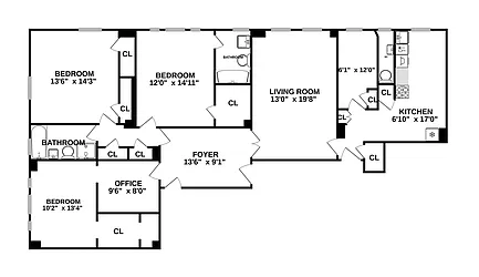
Amazing Price on a Great Apartment… NO BOARD APPROVAL, NO APPLICATION FEES, NO BROKERAGE. Huge prewar SPONSOR unit has 3 full sized bedrooms (one with its own separate office space and giant walk-in closet) and a smaller sized bedroom with an attached 1/2 bath. There is a combo washer/dryer in the apartment. The very large entry foyer can be used as a dining room or office.
Policies
Pets allowed
Cats and dogs allowed
Home features
Dishwasher
Hardwood floors
View
City
Washer/dryer
Building amenities
Services and facilities
Bike room
Doorman
Full-time
Elevator
Laundry in building
Live-in super
Wellness and recreation
No info on wellness and recreation
Shared outdoor space
Roof deck
About the building
221 West 82nd Street
221 West 82nd Street, New York, NY 10024
98 units
17 stories
1923 built
Property history
Prices shown are base rent only. For total monthly price and additional fees, see .
| Date | Base rent | Event |
|---|---|---|
3/17/2023 | $8,000 | Rented by Property Profile Inc |
2/11/2023 | $8,000 | Listed by Property Profile Inc |
9/3/2020 | $6,500 | |
8/25/2020 | $6,500 | Price decreased by 7% |
8/15/2020 | $7,000 |
Past listing photos
Sign in to take a closer look at how this home compares to similar homes.
Explore Upper West Side
Transit
| Location | Distance |
|---|---|
1at 79th St | 0.16 miles |
1at 86th St | 0.18 miles |
BCat 81st St–Museum of Natural History | 0.4 miles |
BCat 86th St | 0.43 miles |
123at 72nd St | 0.5 miles |
About Upper West Side
Rental prices shown are base rent before any fees. Visit listings for cost and fees breakdown.
SalesMedian asking price
3 beds
$2.9M
RentalsMedian asking base rent
3 beds
$9,146
Sandwiched between two beautiful parks, the Upper West Side is one of the greenest spots in Manhattan. For that reason, it is a perennial favorite. The Upper West Side is relaxed, but never dull. There are plenty of low-key bars and restaurants to frequent along Amsterdam Avenue, and Broadway is an always-bustling commercial center. The wide, tree-lined streets still boast many mom-and-pop stores. Less posh than the Upper East Side, it is more easily accessible by public transportation, and real estate prices are just as, if not more, expensive.
Learn more about Upper West SideSimilar homes
Prices shown are base rent only and don't include any fees. Visit each listing to see a complete cost breakdown.
Similar Homes looks at ad spend and other factors like location, price, and number of beds and baths.










































































































































































