$3,927
For Rent
Base rent only. For total monthly price and additional fees, see .
Rented 1/4/2023
$3,506 net effective base rent
1.5 months free
14-month lease
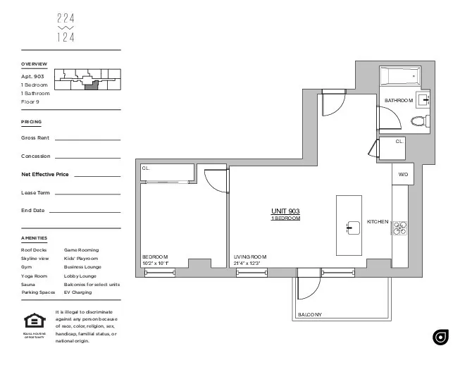
- ft²
5 rooms
1 bed
1 bath
Rental unit
- South Harlem
Under NYC law, you can't be charged a broker fee if you didn't hire a broker.
Listed By
Leasing Team
Licensed Real Estate Broker
Nooklyn NYC LLC
This home has been saved by 31 users.
Listing by Nooklyn NYC LLC, Real Estate Principal Office
Unavailable
Rented on 1/4/2023
Days on market
14 days
Last price change
No changes
About
*Amazing unit! – multiple layouts available with views of Central Park*
Welcome to the brand new 224 West 124th Street
Harlem’s newest luxury building with exquisite panoramic views of Central Park and the Manhattan Skyline
224 West 124th Street offers a mix of 1, 2, and 3 Bedroom apartments along with Townhomes and Penthouse units in a luxury setting with sophisticated amenities.
Policies
Pets allowed
Smoke-free
Home features
Central air
Dishwasher
Hardwood floors
Private outdoor space
Balcony, Roof rights
View
City, Garden, Park, Skyline
Washer/dryer
Building amenities
Services and facilities
Bike room
Concierge
Doorman
Full-time, Virtual
Elevator
Laundry in building
Live-in super
Package room
Parking
Assigned, Garage, Valet
Storage space
Cold storage, Locker/cage
Valet service
Wheelchair access
Wellness and recreation
Children's playroom
Gym
Media room
Shared outdoor space
Courtyard
Deck
Garden
Patio
Roof deck
About the building
224 W 124
224 West 124th Street, New York, NY 10027
169 units
18 stories
2022 built
Property history
Prices shown are base rent only. For total monthly price and additional fees, see .
| Date | Base rent | Event |
|---|---|---|
1/4/2023 | $3,927 | Rented by Nooklyn NYC LLC |
12/21/2022 | $3,927 | Listed by Nooklyn NYC LLC |
Past listing photos
Sign in to take a closer look at how this home compares to similar homes.
Explore South Harlem
Transit
| Location | Distance |
|---|---|
ABCDat 125th St | 0.18 miles |
23at 125th St | 0.25 miles |
BCat 116th St | 0.38 miles |
23at 116th St | 0.45 miles |
BCat 135th St | 0.58 miles |
Similar homes
Prices shown are base rent only and don't include any fees. Visit each listing to see a complete cost breakdown.
Similar Homes looks at ad spend and other factors like location, price, and number of beds and baths.



































































































