View this home virtually
$6,100
For Rent
Base rent only. For total monthly price and additional fees, see .
Rented 9/26/2022
- ft²
5 rooms
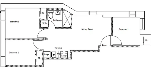
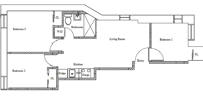
3 beds
1 bath
Rental unit
- Chelsea
Under NYC law, you can't be charged a broker fee if you didn't hire a broker.
Listed By
This home has been saved by 42 users.
Listing by ROUND CUBE GROUP LLC, Real Estate Principal Office, 27 East 65th Street, New York, NY 10065
Unavailable
Rented on 9/26/2022
Days on market
9 days
Last price change
No changes
About
* OH on Wed 9/21 5:30-7pm by appointment only. Email for fastest response.
* Charming Chelsea 3BR/1BA on the 3rd floor walk-up (2 flights of stairs) with view of the Empire State Building.
* No application fees
* Washer/Dryer in apartment
* Portlights throughout the apartment
* Brushed steel appliances including a dishwasher
* Modern, tiled bathroom
* High ceilings, hardwood floors, and ample closet space
*...
Policies
Sorry, policy info isn’t available right now. Check back later.
Home features
Dishwasher
Washer/dryer
Building amenities
No info on building amenities
About the building
224 West 21st Street
224 West 21st Street, New York, NY 10011
17 units
5 stories
1920 built
For rent
0 available units for rentProperty history
Prices shown are base rent only. For total monthly price and additional fees, see .
| Date | Base rent | Event |
|---|---|---|
9/27/2022 | $6,100 | Rented by ROUND CUBE GROUP LLC |
9/26/2022 | $6,100 | No longer available |
9/25/2022 | $6,100 | In contract |
9/16/2022 | $6,100 | Listed by ROUND CUBE GROUP LLC |
4/26/2019 | $4,985 |
Past listing photos
Sign in to take a closer look at how this home compares to similar homes.
Explore Chelsea
Transit
| Location | Distance |
|---|---|
1at 23rd St | 0.12 miles |
1at 18th St | 0.13 miles |
CEat 23rd St | 0.14 miles |
ACELat 14th St | 0.23 miles |
FMat 23rd St | 0.25 miles |
About Chelsea
Rental prices shown are base rent before any fees. Visit listings for cost and fees breakdown.
SalesMedian asking price
3 beds
$3.5M
RentalsMedian asking base rent
3 beds
$7,995
If you're looking for a staid, quiet place to live, Chelsea is not for you. Its thriving arts scene has always been a big draw for creative types. Not surprisingly, residents pay a high price to live in such a hip and happening part of Manhattan. The neighborhood has some of the most exclusive restaurants and bars in the city, and real estate prices are steep — especially for new condos along the High Line.
Slip down many of the side streets, however, and you're likely to find some beautiful and historic townhouses nestled gracefully within the neighborhood's hustle and bustle.
Similar homes
Prices shown are base rent only and don't include any fees. Visit each listing to see a complete cost breakdown.
Similar Homes looks at ad spend and other factors like location, price, and number of beds and baths.


































































































