View this home virtually
$225,000
For Sale
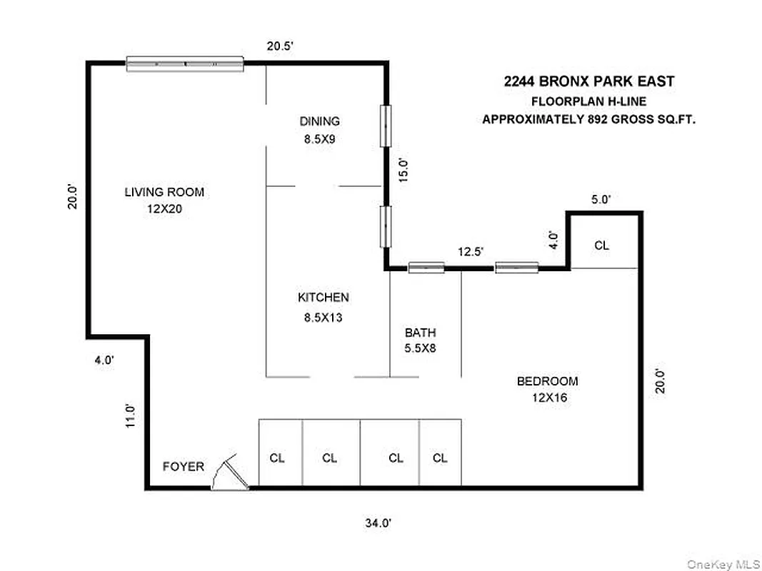
892 ft²
$252 per ft²
4 rooms
1 bed
1 bath
Co-op
- Bronxwood
Sponsor unit
This home has been saved by 11 users.
Listing by Keller Williams Realty NYC Group, Limited Liability Broker, 2300 Eastchester Road, Bronx, NY 10469
Maintenance fees
$824/mo
Estimated payment
$2,021/mo
Taxes
Included in maintenance fees
Tax abatement
No info
About
Seller’s agent
description
Tastefully renovated SPONSOR studio unit on one of the most coveted blocks in the Bronx. Junior 4 layout allows for versatile usage of space: it can be used as a spacious 1BR or a 2BR with the dining area repurposed for a second bedroom. Brand new kitchen includes shaker-style hardwood-faced cabinets, quartz countertops with an undermount sink, and a functional fridge.
Policies
Sorry, policy info isn’t available right now. Check back later.
Home features
Dishwasher
Hardwood floors
View
Park
Building amenities
Services and facilities
Elevator
Laundry in building
Live-in super
Parking
Garage
Wellness and recreation
No info on wellness and recreation
Shared outdoor space
No info on shared outdoor space
About the building
2244 Bronx Park East
2244 Bronx Park East, Bronx, NY 10467
68 units
6 stories
1956 built
For sale
4 available units for saleFor rent
0 available units for rentDocuments and permits
View documents and permitsProperty history
- Price Change: No changes
- Days on market: 62 days
| Date | Price | Event |
|---|---|---|
2/2/2026 | $225,000 | Listed by Keller Williams Realty NYC Group |
Sign in to take a closer look at how this home compares to similar homes.
Explore Bronxwood
Transit
| Location | Distance |
|---|---|
25at Pelham Parkway | 0.15 miles |
25at Allerton Av | 0.5 miles |
5at Morris Park | 0.6 miles |
25at Bronx Park East | 0.65 miles |
5at Pelham Parkway | 0.78 miles |



































































































































