$4,100
For Rent
Base rent only. For total monthly price and additional fees, see .
Rented 1/9/2026
- ft²
3 rooms
1 bed
1 bath
Rental unit
- Chelsea
Under NYC law, you can't be charged a broker fee if you didn't hire a broker.
Listed By
This home has been saved by 41 users.
Listing by Buchbinder & Warren, Limited Liability Broker, 1 Union Square West, New York, NY 10003
Unavailable
Rented on 1/9/2026
Days on market
2 days
Last price change
No changes
About
THE BUILDING
Historic elevator five story town house
On-site laundry and keyless, digital, face-recognition building intercom system
Professionally managed building
Experienced and accommodating building manager
THE APARTMENT
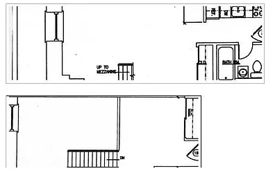
Very charming duplex 1 Bedroom with LOADS OF CHARACTER!!
Fully-appointed Pullman-style kitchen
Three piece tiled bathroom
Dramatic 18 ft ceiling height in living room with elegant...
Policies
Sorry, policy info isn’t available right now. Check back later.
Home features
Dishwasher
Hardwood floors
Building amenities
Services and facilities
Laundry in building
Wellness and recreation
No info on wellness and recreation
Shared outdoor space
No info on shared outdoor space
About the building
225 West 14th Street
225 West 14th Street, New York, NY 10011
27 units
5 stories
1928 built
Property history
Prices shown are base rent only. For total monthly price and additional fees, see .
| Date | Base rent | Event |
|---|---|---|
1/27/2026 | $4,100 | Rented by Buchbinder & Warren |
1/9/2026 | $4,100 | Temporarily off market |
1/7/2026 | $4,100 | Listed by Buchbinder & Warren |
6/18/2025 | $3,600 | |
5/22/2025 | $3,600 |
Past listing photos
Sign in to take a closer look at how this home compares to similar homes.
Explore Chelsea
Transit
| Location | Distance |
|---|---|
FLM123at 14th St | under 500 feet |
ACELat 8th Av | under 500 feet |
ACELat 14th St | 0.11 miles |
1at 18th St | 0.19 miles |
PATHat 14th Street Station | 0.24 miles |
About Chelsea
Rental prices shown are base rent before any fees. Visit listings for cost and fees breakdown.
SalesMedian asking price
1 bed
$999K
RentalsMedian asking base rent
1 bed
$6,026
If you're looking for a staid, quiet place to live, Chelsea is not for you. Its thriving arts scene has always been a big draw for creative types. Not surprisingly, residents pay a high price to live in such a hip and happening part of Manhattan. The neighborhood has some of the most exclusive restaurants and bars in the city, and real estate prices are steep — especially for new condos along the High Line.
Slip down many of the side streets, however, and you're likely to find some beautiful and historic townhouses nestled gracefully within the neighborhood's hustle and bustle.
Similar homes
Prices shown are base rent only and don't include any fees. Visit each listing to see a complete cost breakdown.
Similar Homes looks at ad spend and other factors like location, price, and number of beds and baths.






























































