$1,800
For Rent
Base rent only. For total monthly price and additional fees, see .
Rented 1/13/2025
- ft²
2 rooms
Studio
1 bath
Rental unit
- Ditmars-Steinway
Under NYC law, you can't be charged a broker fee if you didn't hire a broker.
Listed By
This home has been saved by 85 users.
Listing by Douglas Elliman, Limited Liability Broker, 596 Broadway, Cedarhurst, NY 11516 | Brokerage Listing ID: 10491203189
Searching with a housing voucher, like Section 8?
Unavailable
Rented on 1/13/2025
Days on market
12 days
Last price change
No changes
About
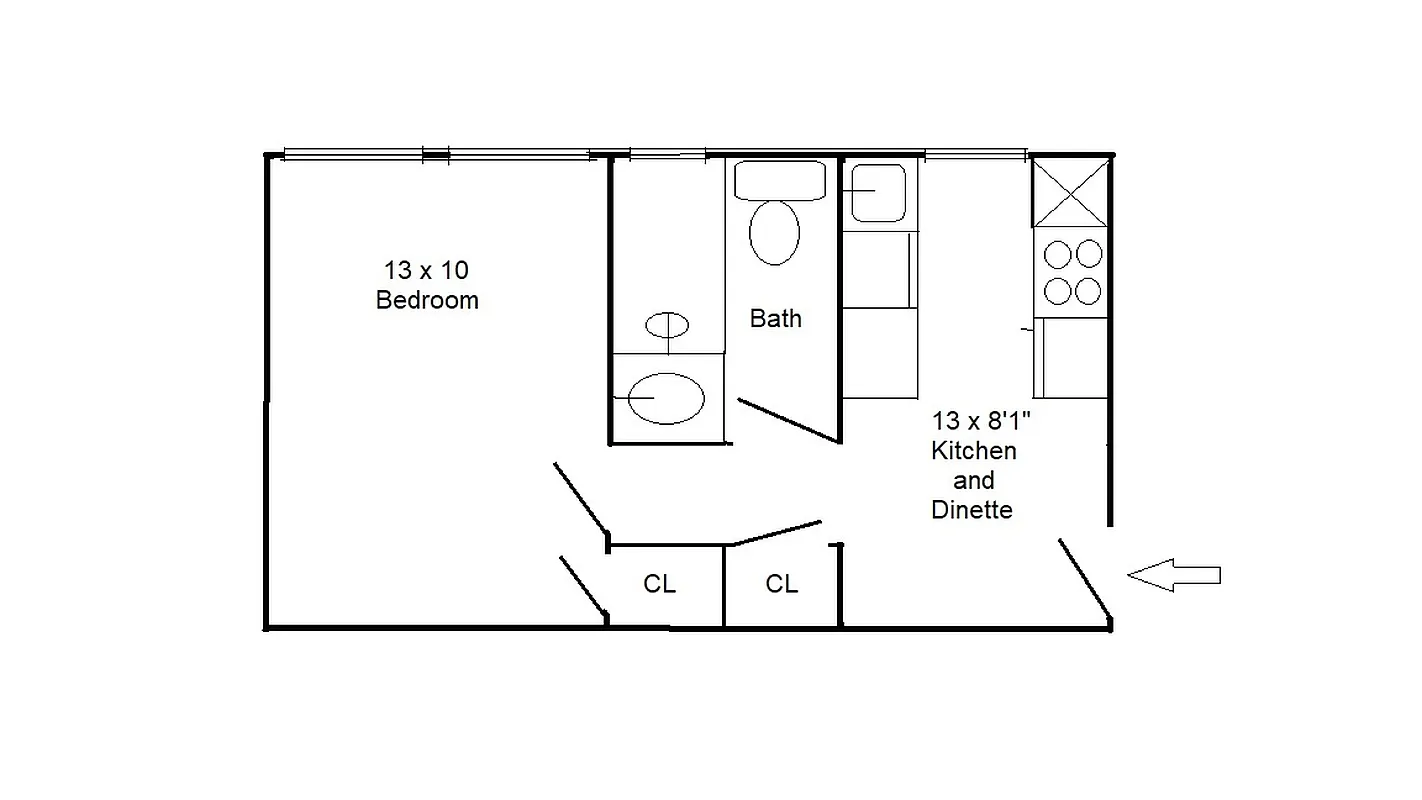
Perfectly located studio apartment in the Ditmars area of Astoria. Complete with separate kitchen and dinette, this two room apartment has hardwood floors, good closet space, windowed spacious kitchen with dishwasher, and lots of daylight. The building is well-maintained and has security cameras in the hallway. Supermarkets, Fine Dining, Nightlife, and all essential convenience shops are all located within blocks.
Policies
Sorry, policy info isn’t available right now. Check back later.
Home features
No info on home features
Building amenities
No info on building amenities
About the building
22-69 41st Street
22-69 41st Street, Astoria, NY 11105
12 units
4 stories
1930 built
Property history
Prices shown are base rent only. For total monthly price and additional fees, see .
| Date | Base rent | Event |
|---|---|---|
1/13/2025 | $1,800 | Rented by Douglas Elliman |
1/10/2025 | $1,800 | In contract |
12/29/2024 | $1,800 | Listed by Douglas Elliman |
4/24/2019 | $1,450 | |
3/27/2019 | $1,450 |
Past listing photos
Sign in to take a closer look at how this home compares to similar homes.
Explore Ditmars-Steinway
Transit
| Location | Distance |
|---|---|
NWat Astoria–Ditmars Blvd | 0.39 miles |
NWat Astoria Blvd | 0.53 miles |
NWat 30th Av | 0.79 miles |
MRat 46th St | 1.03 miles |
MRat Steinway St | 1.08 miles |
Similar homes
Prices shown are base rent only and don't include any fees. Visit each listing to see a complete cost breakdown.
Similar Homes looks at ad spend and other factors like location, price, and number of beds and baths.


























































