View this home virtually
- ft²
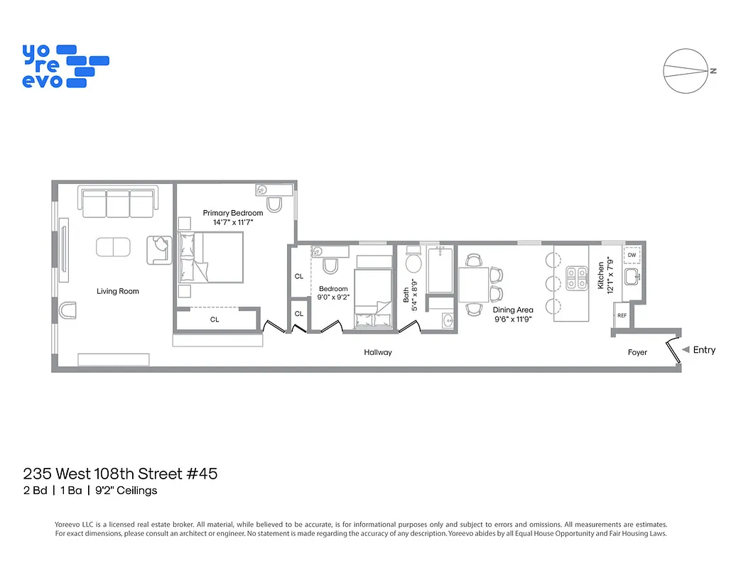
5 rooms
2 beds
1 bath
Co-op
- Manhattan Valley
Resale
recorded sale
Sold on 7/30/2024
Verified by closing records
Last listed for $800,000
Seller's agents
This home has been saved by 158 users.
Listing by Yoreevo, LLC, Limited Liability Broker, 154 West 14th Street, New York, NY 10011
Maintenance fees
$1,640/mo
Estimated payment
$5,791/mo
Legal disclaimerAll calculations are estimates provided by StreetEasy for informational purposes only. Actual amounts or financing terms may vary. Please contact your mortgage provider for specifics.Taxes
Included in maintenance fees
Tax abatement
No info
About
Seller’s agent
description
Welcome to 235 West 108th Street, Apartment 45, a large two bedroom on the Upper West Side.
As you enter, you’ll immediately notice the beautiful hardwood flooring and recently renovated kitchen, complete with an island, stainless steel appliances, granite countertops and an adjacent space with plenty of room for a dining area.
Policies
Pets allowed
Cats and dogs allowed
Pied-a-terre allowed
Sublets allowed
Home features
No info on home features
Building amenities
Services and facilities
Bike room
Elevator
Live-in super
Wellness and recreation
No info on wellness and recreation
Shared outdoor space
No info on shared outdoor space
About the building
235 West 108th Street
235 West 108th Street, New York, NY 10025
37 units
6 stories
1925 built
For sale
1 available units for saleFor rent
0 available units for rentDocuments and permits
View documents and permitsProperty history
- Price Change: No changes
- Days on market: 63 daysThis is the number of days the listing has been on StreetEasy.
| Date | Price | Event |
|---|---|---|
7/30/2024 | $790,000 | Sold by Yoreevo, LLC |
5/3/2024 | $800,000 | In contract |
3/20/2024 | $800,000 | Listed by Yoreevo, LLC |
3/12/2024 | $800,000 | Temporarily off market |
2/22/2024 | $800,000 | Listed by Yoreevo, LLC |
Past listing photos
Sign in to take a closer look at how this home compares to similar homes.
Explore Manhattan Valley
Transit
| Location | Distance |
|---|---|
1at Cathedral Parkway–110th St | under 500 feet |
1at 103rd St | 0.25 miles |
1at 116th St–Columbia University | 0.4 miles |
BCat Cathedral Parkway–110th St | 0.44 miles |
BCat 103rd St | 0.51 miles |




























































































































