$4,695
For Rent
Base rent only. For total monthly price and additional fees, see .
Rented 9/10/2024
- ft²
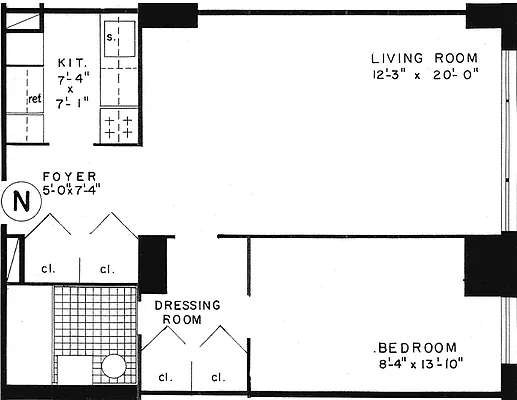
3 rooms
1 bed
1 bath
Rental unit
- Gramercy Park
Under NYC law, you can't be charged a broker fee if you didn't hire a broker.
Listed By
This home has been saved by 4 users.
Listing by Bond New York, Limited Liability Broker, 810 Seventh Avenue, New York, NY 10019
Unavailable
Rented on 9/10/2024
Days on market
1 day
Last price change
No changes
About
*Text me for Video!*
*Best Deal in Gramercy!*
*HUGE 1 Bedroom:*
- Pristine kitchen with full size appliances.
-Super Sunny
-Massive living room
-Pristine Bathroom
-SPRAWLING QueenSize Bedroom
-Tons of Storage space all over the apartment!
Policies
Sorry, policy info isnât available right now. Check back later.
Home features
Central air
Dishwasher
Hardwood floors
View
City
Building amenities
Services and facilities
Concierge
Doorman
Full-time
Elevator
Laundry in building
Live-in super
Package room
Parking
Garage
Wheelchair access
Wellness and recreation
No info on wellness and recreation
Shared outdoor space
No info on shared outdoor space
About the building
245 East 19th Street
245 East 19th Street, New York, NY 10003
292 units
20 stories
1963 built
Property history
Prices shown are base rent only. For total monthly price and additional fees, see .
| Date | Base rent | Event |
|---|---|---|
9/10/2024 | $4,695 | Rented by Bond New York |
9/5/2024 | $4,695 | In contract |
9/4/2024 | $4,695 | Listed by Bond New York |
7/19/2023 | $4,795 | |
7/19/2023 | $4,795 | Price increased by 9% |
Past listing photos
Sign in to take a closer look at how this home compares to similar homes.
Explore Gramercy Park
Transit
| Location | Distance |
|---|---|
Lat 3rd Av | 0.27 miles |
Lat 1st Av | 0.31 miles |
6at 23rd St | 0.32 miles |
LNQRW456at 14th StâUnion Square | 0.36 miles |
RWat 23rd St | 0.47 miles |
About Gramercy Park
Rental prices shown are base rent before any fees. Visit listings for cost and fees breakdown.
SalesMedian asking price
1 bed
$960K
RentalsMedian asking base rent
1 bed
$4,995
In the early 20th century, Gramercy Park was synonymous with luxury. Some of the most prominent New Yorkers lived in grand houses along the neighborhood's eponymous park. Today, Gramercy Park is a brief respite from the hustle and bustle of Downtown Manhattan that still retains an old-world vibe. It's not uncommon to see residents dressed in tweed and loafers tottering down Irving Place, a quiet commercial stretch that offers a mix of local shops, restaurants, and pubs. As you head further east, the avenues get busier and more generic.
Gramercy's side streets are lined with walk-ups and large apartment buildings and are more casual than the blocks surrounding the actual park, attracting residents looking for a quintessentially nice New York City neighborhood.
Similar homes
Prices shown are base rent only and don't include any fees. Visit each listing to see a complete cost breakdown.
Similar Homes looks at ad spend and other factors like location, price, and number of beds and baths.



































































