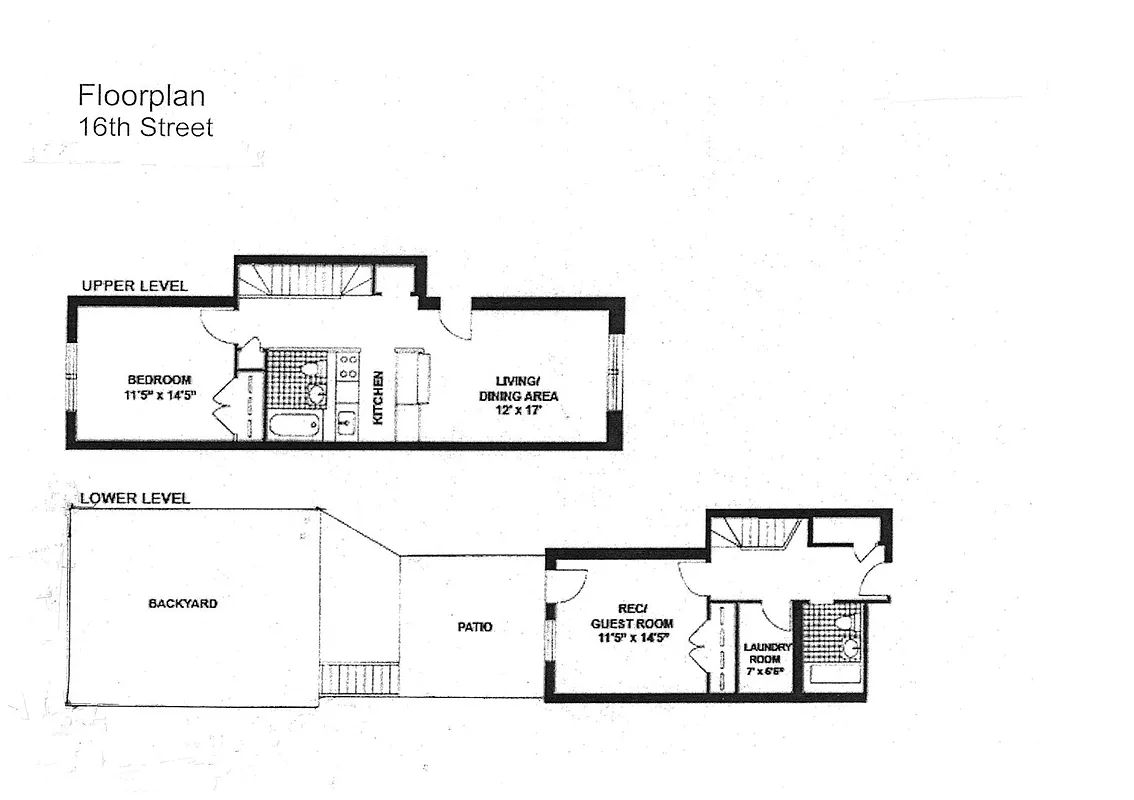
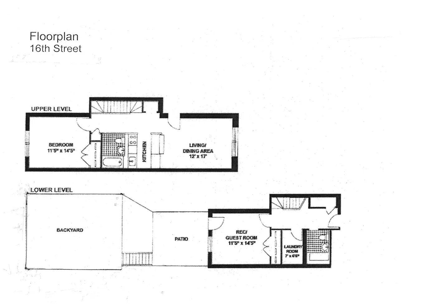
1,080 ft²
$1,087 per ft²
5 rooms
2 beds
1.5 baths
Condo
- Park Slope
Resale
reported sale
Sold on 11/6/2025
Not yet verified by closing records
Seller's agent
This home has been saved by 205 users.
Listing by Brown Harris Stevens, Real Estate Principal Office, 100 Seventh Avenue, Brooklyn, NY 11215
Common charges
$640/mo
Estimated payment
$6,587/mo
Legal disclaimerAll calculations are estimates provided by StreetEasy for informational purposes only. Actual amounts or financing terms may vary. Please contact your mortgage provider for specifics.Taxes
$60/mo
Tax abatement
421a expires in 2030
About
Seller’s agent
description
Welcome home to this charming 2-bedroom, 1.5 bath condo duplex at 251 16th Street, Unit 1A, nestled in the heart of Brooklyn's vibrant Park Slope neighborhood. Boasting an expansive 1,080 square feet of living space, this first-floor duplex gem combines modern amenities with cozy comforts to create a truly inviting home.
Step inside to be greeted by natural light streaming through north and south exposures, illuminating the well maintained hardwood floors throughout the unit.
Policies
Sorry, policy info isn’t available right now. Check back later.
Home features
Dishwasher
Hardwood floors
Private outdoor space
Garden
Washer/dryer
Building amenities
Services and facilities
No info on services and facilities
Wellness and recreation
No info on wellness and recreation
Shared outdoor space
Courtyard
About the building
251 16th Street
251 16th Street, Brooklyn, NY 11215
16 units
5 stories
2003 built
For sale
0 available units for saleFor rent
0 available units for rentDocuments and permits
View documents and permitsProperty history
- Price Change: ↓ $50,000 (-4.1%) on 11/15/24
- Days on market: 149 daysThis is the number of days the listing has been on StreetEasy.
| Date | Price | Event |
|---|---|---|
11/6/2025 | $1,175,000 | Sold by Brown Harris Stevens |
2/25/2025 | $1,175,000 | In contract |
2/21/2025 | $1,175,000 | Temporarily off market |
11/15/2024 | $1,175,000 | Price decreased by 4% |
9/25/2024 | $1,225,000 | Listed by Brown Harris Stevens |
Past listing photos
Sign in to take a closer look at how this home compares to similar homes.
Explore Park Slope
Transit
| Location | Distance |
|---|---|
Rat Prospect Av | 0.26 miles |
Fat 7th Av | 0.36 miles |
Fat 4th Av | 0.4 miles |
FGRat 9th St | 0.42 miles |
Fat Prospect Park–15 St | 0.48 miles |
About Park Slope
Rental prices shown are base rent before any fees. Visit listings for cost and fees breakdown.
SalesMedian asking price
2 beds
$1.52M
RentalsMedian asking base rent
2 beds
$4,850
Park Slope has a tranquil, easygoing vibe and can almost feel suburban. Strollers and children of all ages are a constant presence on sidewalks, as are shoppers patronizing local boutiques and dog walkers heading up to the park. Residents are Brooklynites through and through and tend to be socially conscious, artistically minded, and committed to their community. At night, a casual restaurant scene comes alive. For anyone looking for a night out, there are plenty of beer gardens and wine bars to patronize, especially in the South Slope, but don't go looking for dance clubs.
Learn more about Park Slope



















































































































