- ft²
8 rooms
5 beds
5 baths
Three-family home
- Astoria
recorded sale
Sold on 1/7/2019
Verified by closing records
Last listed for $1,598,000
Seller's agents
Halstead Real Estate
This home has been saved by 25 users.
Listing by Halstead Real Estate, 10 East 53rd Street, New York, NY 10022 | MLS #: 18630826
Common charges
Not applicable
Estimated payment
$7,934/mo
Legal disclaimerAll calculations are estimates provided by StreetEasy for informational purposes only. Actual amounts or financing terms may vary. Please contact your mortgage provider for specifics.Taxes
No info
Tax abatement
No info
About
Seller’s agent
description
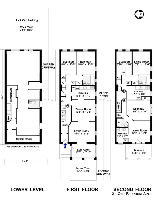
3 Family - Astoria Park - HUGE!
Perfect investment property! Legal 3 Brick family with a finished basement and private driveway. This property is only a block from the amazing Astoria Park and the boardwalk along the river. One of the most desirable tree line streets in Astoria. Recently announced a $30 Million investment of the city in to Astoria Park.
1st floor - Huge 3 bedroom 1 bathroom
2F - 1 bedroom 1 bath with a private terrace.
Policies
Sorry, policy info isn’t available right now. Check back later.
Home features
Private outdoor space
Terrace
Building amenities
No info on building amenities
About the building
25-25 14th Street
25-25 14th Street, Astoria, NY 11102
3 units
2 stories
1920 built
For sale
0 available units for saleFor rent
0 available units for rentDocuments and permits
View documents and permitsProperty history
- Price Change: ↓ $90,000 (-5.3%) on 9/18/18
- Days on market: 211 daysThis is the number of days the listing has been on StreetEasy.
| Date | Price | Event |
|---|---|---|
8/8/2025 | $2,488,000 | |
4/1/2025 | $2,488,000 | |
1/7/2019 | $1,569,000 | Sold by Halstead Real Estate |
9/18/2018 | $1,598,000 | Price decreased by 5% |
7/30/2018 | $1,688,000 | Price decreased by 6% |
Past listing photos
Sign in to take a closer look at how this home compares to similar homes.
Explore Astoria
Transit
| Location | Distance |
|---|---|
Ferryat Astoria Ferry Landing | 0.49 miles |
NWat Astoria Blvd | 0.62 miles |
NWat 30th Av | 0.67 miles |
NWat Astoria–Ditmars Blvd | 0.8 miles |
NWat Broadway | 0.93 miles |
About Astoria
Rental prices shown are base rent before any fees. Visit listings for cost and fees breakdown.
SalesMedian asking price
5 beds
$1.63M
RentalsMedian asking base rent
5 beds
$5,250
Home to some 160,000 residents, Astoria is a bustling neighborhood long known for its great ethnic food, busy commercial thoroughfares and charming single-family homes. Astoria's quick commute into Midtown Manhattan (15 minutes on the N, R, W, or M) and reasonable home prices, however, have recently begun to attract newcomers. New developments are now cropping up and changing the landscape, too. Now, the neighborhood's historic single-family homes and postwar co-op buildings are interspersed with condominiums and upscale rentals.
Learn more about Astoria












































































































































































































