$10,250
For Rent
Base rent only. For total monthly price and additional fees, see .
Rented 10/7/2015
- ft²
9 rooms
5 beds
2.5 baths
Three-family home
- Park Slope
Under NYC law, you can't be charged a broker fee if you didn't hire a broker.
Listed By
This home has been saved by 3 users.
Listing by Corcoran, Limited Liability Broker, 125 Seventh Avenue, Brooklyn, NY 11215 | Brokerage Listing ID: 3501303
Unavailable
Rented on 10/7/2015
Days on market
22 days
Last price change
↓ $750 (-6.8%) on 9/24/15
About
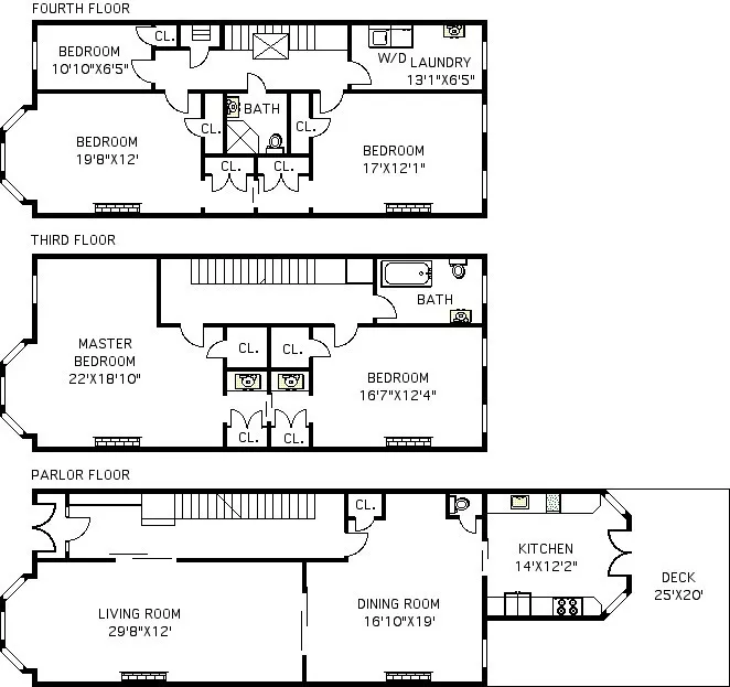
LIVE RIGHT OFF PROSPECT PARK! Amazing 20' wide Victorian brownstone with amazing original detail and in impeccable condition. Premiere Park Slope location between 7th Avenue's renowned retail corridor and Prospect Park. Three full floors with 5 bedrooms, laundry room, 2.5 baths, eat-in chef's kitchen leading to large South-facing private deck, formal dining room and large front parlor.
Policies
Sorry, policy info isn’t available right now. Check back later.
Home features
Fireplace
Private outdoor space
Patio, Terrace
Washer/dryer
Building amenities
No info on building amenities
About the building
260 Garfield Place
260 Garfield Place, Brooklyn, NY 11215
3 units
3 stories
1901 built
Property history
Prices shown are base rent only. For total monthly price and additional fees, see .
| Date | Base rent | Event |
|---|---|---|
6/28/2016 | $10,250 | Rented by Corcoran |
10/7/2015 | $10,250 | No longer available |
9/24/2015 | $10,250 | Price decreased by 7% |
9/15/2015 | $11,000 | Listed by Corcoran |
6/27/2010 | $10,000 |
Past listing photos
Sign in to take a closer look at how this home compares to similar homes.
Explore Park Slope
Transit
| Location | Distance |
|---|---|
23at Grand Army Plaza | 0.34 miles |
Fat 7th Av | 0.41 miles |
BQat 7th Av | 0.44 miles |
Rat Union St | 0.57 miles |
23at Eastern Parkway–Brooklyn Museum | 0.58 miles |
About Park Slope
Rental prices shown are base rent before any fees. Visit listings for cost and fees breakdown.
SalesMedian asking price
5 beds
$3.75M
RentalsMedian asking base rent
5 beds
$9,854
Park Slope has a tranquil, easygoing vibe and can almost feel suburban. Strollers and children of all ages are a constant presence on sidewalks, as are shoppers patronizing local boutiques and dog walkers heading up to the park. Residents are Brooklynites through and through and tend to be socially conscious, artistically minded, and committed to their community. At night, a casual restaurant scene comes alive. For anyone looking for a night out, there are plenty of beer gardens and wine bars to patronize, especially in the South Slope, but don't go looking for dance clubs.
Learn more about Park SlopeSimilar homes
Prices shown are base rent only and don't include any fees. Visit each listing to see a complete cost breakdown.
Similar Homes looks at ad spend and other factors like location, price, and number of beds and baths.









































































































































































