$3,995
For Rent
Base rent only. For total monthly price and additional fees, see .
Rented 9/25/2025
$3,353 net effective base rent
2.25 months free
14-month lease
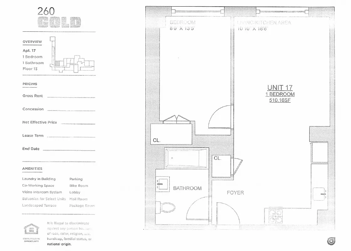
- ft²
2 rooms
1 bed
1 bath
Rental unit
- Downtown Brooklyn
Under NYC law, you can't be charged a broker fee if you didn't hire a broker.
Listed By
This home has been saved by 11 users.
Listing by Dalan Rentals, Corporate Broker, 134 West 25th Street, New York, NY 10001
Unavailable
Rented on 9/25/2025
Days on market
6 days
Last price change
No changes
About
**LUXURY - DOORMAN - ELEVATOR - LAUNDRY IN BUILDING**
No Broker Fee. Fees required to be paid by tenant are listed.
SPECIAL PROMO: SECURITY REDUCED TO $1,000 WITH QUALIFYING CREDIT OF 700+ (NOT VALID FOR PET OWNERS) **
Luxury 1-bedroom 1-bathroom residence with hot water included in the rent.
260 Gold is a modern 13-story building constructed in 2022 blending upscale finishes and a top-tier, optional amenity package.
Policies
Pets allowed
Smoke-free
Home features
Central air
Dishwasher
Hardwood floors
View
City
Building amenities
Services and facilities
Bike room
Doorman
Elevator
Laundry in building
Live-in super
Package room
Parking
Assigned, Garage
Storage space
Wheelchair access
Wellness and recreation
Children's playroom
Gym
Media room
Shared outdoor space
Deck
Roof deck
About the building
260 Gold
260 Gold Street, Brooklyn, NY 11201
286 units
13 stories
2021 built
Property history
Prices shown are base rent only. For total monthly price and additional fees, see .
| Date | Base rent | Event |
|---|---|---|
9/25/2025 | $3,995 | Rented by Dalan Rentals |
9/25/2025 | $3,995 | In contract |
9/19/2025 | $3,995 | Listed by Dalan Rentals |
2/25/2023 | $3,640 | |
2/21/2023 | $3,640 | Price decreased by 4% |
Past listing photos
Sign in to take a closer look at how this home compares to similar homes.
Explore Downtown Brooklyn
Transit
| Location | Distance |
|---|---|
ACat High St | 0.22 miles |
ACFRat Jay StâMetroTech | 0.25 miles |
Fat York St | 0.32 miles |
R2345at Borough Hall/Court St | 0.33 miles |
BQRat DeKalb Av | 0.4 miles |
About Downtown Brooklyn
Rental prices shown are base rent before any fees. Visit listings for cost and fees breakdown.
SalesMedian asking price
1 bed
$874.5K
RentalsMedian asking base rent
1 bed
$4,495
Bisected by Flatbush Avenue and bordered by the BQE, Downtown Brooklyn is a rapidly expanding residential neighborhood. Easy subway access and abundant inventory have drawn many to the area looking for luxury rentals and condos in the area's numerous new apartment towers.
Historically, Downtown Brooklyn has been the hub of the borough's municipal activities with many civil service offices and court houses centered around Cadman Plaza, the neighborhood's main hub. With tons of city employees, lawyers and Brooklynites of all types constantly bustling about, Downtown Brooklyn has a decidedly hectic vibe. This, coupled with the area's lack of green space, makes Downtown Brooklyn most appealing to those who can embrace one of Brooklyn's busiest and most trafficked neighborhoods.
Similar homes
Prices shown are base rent only and don't include any fees. Visit each listing to see a complete cost breakdown.
Similar Homes looks at ad spend and other factors like location, price, and number of beds and baths.
















































































































