$8,995
For Rent
Base rent only. For total monthly price and additional fees, see .
Rented 4/19/2024
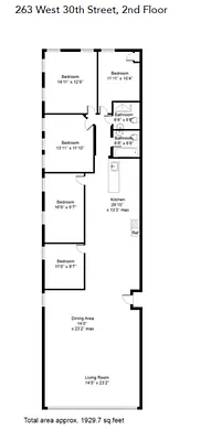
2,000 ft²
$53 per ft²
7 rooms
5 beds
2 baths
Mixed-use building
- Midtown South
Under NYC law, you can't be charged a broker fee if you didn't hire a broker.
Listed By
This home has been saved by 40 users.
Listing by Corcoran, Limited Liability Broker, 387 Park Avenue South, New York, NY 10016
Unavailable
Rented on 4/19/2024
Days on market
45 days
Last price change
↓ $505 (-5.3%) on 4/9/24
About
Rare 2000 sq. ft 5 Bedroom Loft / Live Work Space
The Entire 2nd Floor, Only 1 Flight Up
5 Large Bedrooms, 2 Full Bathrooms, Huge Living Room
Dishwasher, Washer Dryer, Exposed Brick
High Ceilings, Heat Included, Live Work Allowed
Most Pets are Accepted
Steps to Madison Square Garden, The Theater District, Chelsea, FIT,
Tons of Great Restaurants and Bars!
Videos upon request
Policies
Sorry, policy info isn’t available right now. Check back later.
Home features
Hardwood floors
View
City
Washer/dryer
Building amenities
No info on building amenities
About the building
263 West 30th Street
263 West 30th Street, New York, NY 10001
2 units
3 stories
1910 built
Property history
Prices shown are base rent only. For total monthly price and additional fees, see .
| Date | Base rent | Event |
|---|---|---|
4/25/2024 | $8,995 | Rented by Corcoran |
4/19/2024 | $8,995 | Temporarily off market |
4/9/2024 | $8,995 | Price decreased by 5% |
4/2/2024 | $9,500 | Price decreased by 5% |
3/5/2024 | $9,995 | Listed by Corcoran |
Past listing photos
Sign in to take a closer look at how this home compares to similar homes.
Explore Midtown South
Transit
| Location | Distance |
|---|---|
LIRRat Penn Station | under 500 feet |
123ACEat 34th St–Penn Station | 0.12 miles |
1at 28th St | 0.17 miles |
CEat 23rd St | 0.25 miles |
BDFMNQRWat 34th St–Herald Sq | 0.31 miles |
Similar homes
Prices shown are base rent only and don't include any fees. Visit each listing to see a complete cost breakdown.
Similar Homes looks at ad spend and other factors like location, price, and number of beds and baths.





















































































