$3,000
For Rent
Base rent only. For total monthly price and additional fees, see .
No longer available 6/30/2025
1,224 ft²
$29 per ft²
5 rooms
2 beds
1 bath
Two-family home
- Ocean Hill
Under NYC law, you can't be charged a broker fee if you didn't hire a broker.
Listed By
This home has been saved by 40 users.
Listing by Compass, Corporate Broker, 375 Schermerhorn Street, Brooklyn, NY 11217
Searching with a housing voucher, like Section 8?
Unavailable
No longer available on 6/30/2025
Days on market
11 days
Last price change
No changes
About
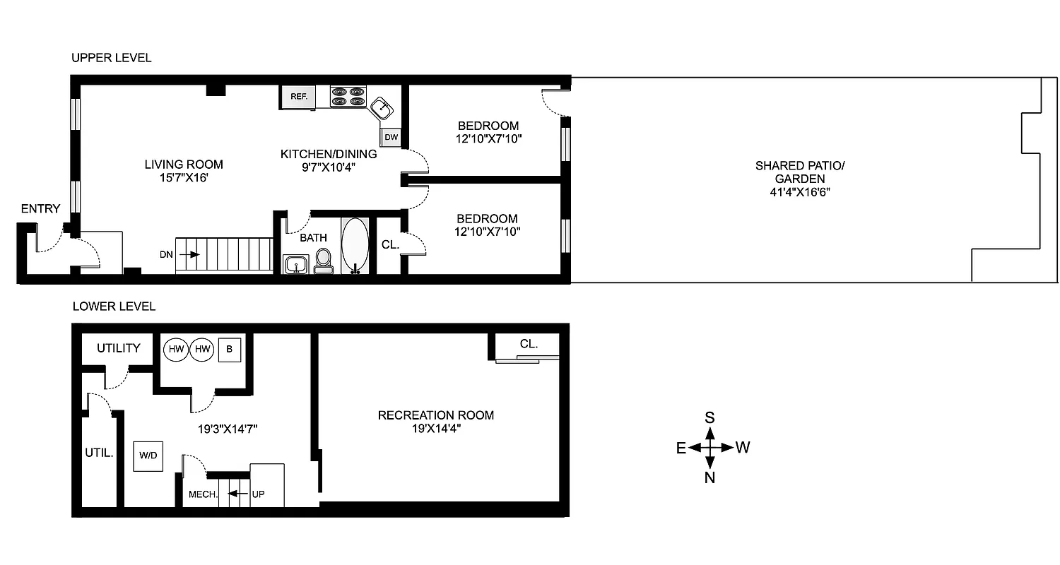
Tucked away on a quiet, tree-lined block in the Ocean Hill section of Bed-Stuy, this beautifully renovated duplex offers the perfect blend of space, comfort, and convenience. With over 1,200 square feet of thoughtfully designed living space, this home features two true bedrooms plus a sprawling lower-level flex room—ideal for a home office, guest suite, or creative studio.
Policies
Sorry, policy info isn’t available right now. Check back later.
Home features
Central air
Dishwasher
Hardwood floors
Private outdoor space
Garden
Washer/dryer
Building amenities
No info on building amenities
About the building
28 Roosevelt Place
28 Roosevelt Place, Brooklyn, NY 11233
2 units
2 stories
1899 built
Property history
Prices shown are base rent only. For total monthly price and additional fees, see .
| Date | Base rent | Event |
|---|---|---|
9/29/2025 | $3,000 | No longer available |
6/30/2025 | $3,000 | Temporarily off market |
6/19/2025 | $3,000 | Listed by Compass |
2/17/2022 | $2,200 | |
2/8/2022 | $2,200 |
Past listing photos
Sign in to take a closer look at how this home compares to similar homes.
Explore Ocean Hill
Transit
| Location | Distance |
|---|---|
ACat Rockaway Av | 0.15 miles |
ACat Ralph Av | 0.33 miles |
JZat Chauncey St | 0.5 miles |
Jat Halsey St | 0.62 miles |
ACJLat Broadway Junction–East New York | 0.63 miles |
Similar homes
Prices shown are base rent only and don't include any fees. Visit each listing to see a complete cost breakdown.
Similar Homes looks at ad spend and other factors like location, price, and number of beds and baths.
















































































































































