- ft²
11 rooms
6 beds
5 baths
Two-family home
- Clinton Hill
recorded sale
Sold on 8/28/2014
Verified by closing records
Last listed for $2,795,000
Seller's agents
Dennis McCarthy
Licensed Associate Real Estate Broker
Corcoran
This home has been saved by 16 users.
Listing by Corcoran, Limited Liability Broker, 245 Bedford Avenue, Brooklyn, NY 11211 | Brokerage Listing ID: 3259489
Common charges
Not applicable
Estimated payment
$15,332/mo
Taxes
$466/mo
Tax abatement
No info
About
Sellerâs agent
description
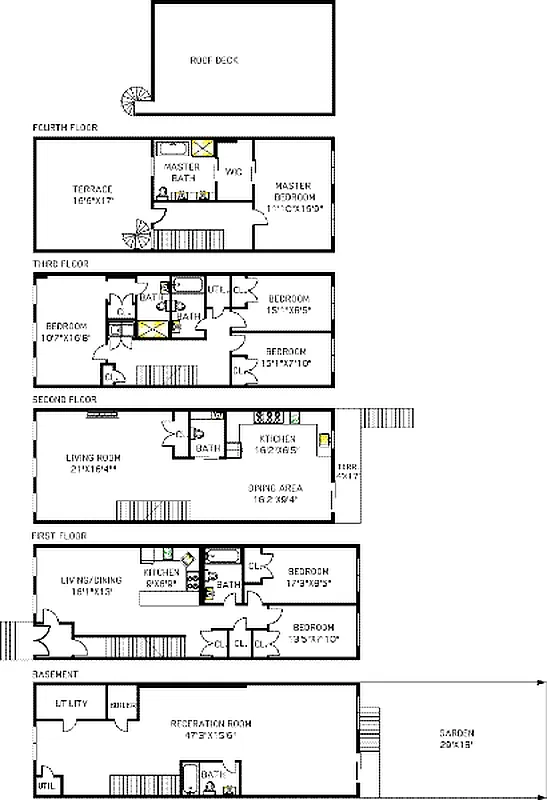
Exquisite Clinton Hill 4 Story, 2 family, New Construction Brownstone located in one of Clinton Hills most charming enclaves! This one of a kind townhouse is masterfully designed and offers top of the line finishes and an incredibly spacious and functional lay out. Configured as a 4 bed, 3.5 bath owners triplex with a 2.5 bed duplex rental on the garden floor.
Policies
Sorry, policy info isnât available right now. Check back later.
Home features
Fireplace
Building amenities
Sorry, building amenities aren't available right now. Check back later.
About the building
284 Saint James Place
284 Saint James Place, Brooklyn, NY 11238
2 units
4 stories
2013 built
For sale
0 available units for saleFor rent
0 available units for rentDocuments and permits
View documents and permitsProperty history
- Price Change: No changes
- Days on market: 48 days
| Date | Price | Event |
|---|---|---|
8/28/2014 | $2,795,000 | Sold by Corcoran |
8/28/2014 | $2,795,000 | No longer available |
6/18/2014 | $2,795,000 | In contract |
5/1/2014 | $2,795,000 | Listed by Corcoran |
Past listing photos
Sign in to take a closer look at how this home compares to similar homes.
Explore Clinton Hill
Transit
| Location | Distance |
|---|---|
Cat Clinton & Washington Avs | under 500 feet |
ASat Franklin Av | 0.42 miles |
ACSat Franklin Av | 0.43 miles |
Gat ClintonâWashington Avs | 0.45 miles |
Gat Classon Av | 0.51 miles |










































































































































