$4,500
For Rent
Base rent only. For total monthly price and additional fees, see .
No longer available 8/23/2010
- ft²
6 rooms
3 beds
1.5 baths
Rental unit
- East Village
Under NYC law, you can't be charged a broker fee if you didn't hire a broker.
Listed By
This home has been saved by 5 users.
Listing by Corcoran, Limited Liability Broker, 524 Broadway, New York, NY 10012 | Brokerage Listing ID: 2029293
Unavailable
No longer available on 8/23/2010
Days on market
41 days
Last price change
No changes
About
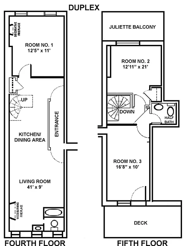
Duplex Penthouse ,Three bedroom apartment with Outdoor space and Spectacular Views of Empire State Building and Chrysler Building. Newly Renovated, this home is a perfect share ! Hi Ceiling, Exposed Brick, two Exposures North and South , Decorative fireplaces, hard wood Floor, Metal Industrial Door and more of Original Details. Close to Subway and Park , Health Food stores, St Marks Place, The Russian Bath , Restaurants and Bars.
Policies
Sorry, policy info isn’t available right now. Check back later.
Home features
Fireplace
Private outdoor space
Building amenities
No info on building amenities
About the building
286 East 10th Street
286 East 10th Street, New York, NY 10009
8 units
5 stories
1900 built
Property history
Prices shown are base rent only. For total monthly price and additional fees, see .
| Date | Base rent | Event |
|---|---|---|
8/23/2010 | $4,500 | No longer available |
7/13/2010 | $4,500 | Listed by Corcoran |
Sign in to take a closer look at how this home compares to similar homes.
Explore East Village
Transit
| Location | Distance |
|---|---|
Lat 1st Av | 0.22 miles |
Lat 3rd Av | 0.4 miles |
6at Astor Place | 0.44 miles |
Fat 2nd Av | 0.45 miles |
RWat 8th St–NYU | 0.52 miles |
About East Village
Rental prices shown are base rent before any fees. Visit listings for cost and fees breakdown.
SalesMedian asking price
3 beds
$3.5M
RentalsMedian asking base rent
3 beds
$7,495
Known and loved for being the birthplace of punk rock, the East Village is known for its vibrant restaurants and cocktail dens. During the day, however, the neighborhood slows down and has a tranquil feel. Meander down a leafy side street, and you'll happen upon plenty of prewar buildings and rusting fire escapes, which lend the East Village its old-fashioned charm.
Learn more about East VillageSimilar homes
Prices shown are base rent only and don't include any fees. Visit each listing to see a complete cost breakdown.
Similar Homes looks at ad spend and other factors like location, price, and number of beds and baths.
































































