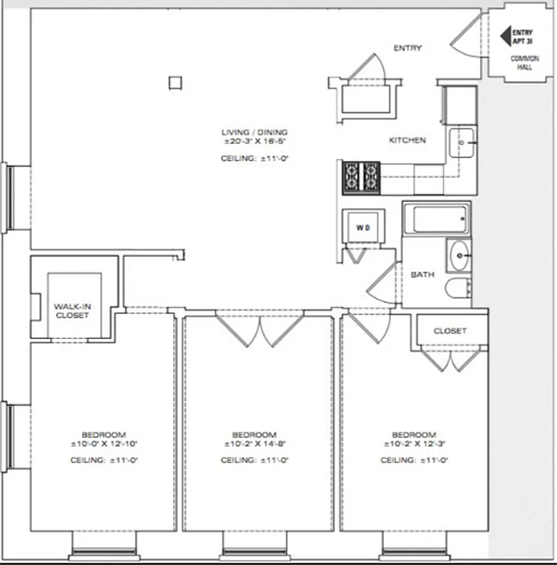
1,250 ft²
$1,111 per ft²
6 rooms
3 beds
1 bath
Condo
- Columbia St Waterfront District
Resale
reported sale
Sold on 7/8/2022
Not yet verified by closing records
Seller's agent
This home has been saved by 145 users.
Listing by Compass, Corporate Broker, 10 East 53rd Street, New York, NY 10022
Common charges
$747/mo
Estimated payment
$9,064/mo
Legal disclaimerAll calculations are estimates provided by StreetEasy for informational purposes only. Actual amounts or financing terms may vary. Please contact your mortgage provider for specifics.Taxes
$646/mo
Tax abatement
No info
About
Seller’s agent
description
Immaculate and spacious Condo Loft with Deeded Parking!
Welcome to the highly desirable Tiffany Place, a quaint cobblestone block in a peaceful yet convenient location. Originally two early 20th century manufacturing buildings, the Ariana Condominium is a luxurious service building with full amenities. Shown by appointment only with Peter Riolo of Compass, please contact for additional media, floor plan, and virtual walk through.
Policies
Pets allowed
Cats and dogs allowed
Home features
No info on home features
Building amenities
Services and facilities
Bike room
Doorman
Part-time
Elevator
Live-in super
Wellness and recreation
Gym
Shared outdoor space
Roof deck
About the building
29 Tiffany Place
29 Tiffany Place, Brooklyn, NY 11231
70 units
8 stories
1930 built
For sale
0 available units for saleFor rent
0 available units for rentDocuments and permits
View documents and permitsProperty history
- Price Change: No changes
- Days on market: 125 daysThis is the number of days the listing has been on StreetEasy.
| Date | Price | Event |
|---|---|---|
3/25/2024 | $1,388,750 | Sold by Compass |
7/8/2022 | $1,388,750 | Delisted by Compass |
1/2/2021 | $1,388,750 | In contract |
8/30/2020 | $1,388,750 | Listed by Compass |
7/25/2013 | $1,085,000 |
Past listing photos
Sign in to take a closer look at how this home compares to similar homes.
Explore Columbia St Waterfront District
Transit
| Location | Distance |
|---|---|
FGat Carroll St | 0.49 miles |
FGat Bergen St | 0.49 miles |
R2345at Borough Hall/Court St | 0.66 miles |
ACGat Hoyt & Schermerhorn | 0.8 miles |
ACFRat Jay St–MetroTech | 0.81 miles |
























































































































































