$10,900
For Rent
Base rent only. For total monthly price and additional fees, see .
Rented 9/18/2025
3,600 ft²
$36 per ft²
10 rooms
5 beds
4 baths
Two-family home
- Bedford-Stuyvesant
Under NYC law, you can't be charged a broker fee if you didn't hire a broker.
Listed By
This home has been saved by 17 users.
Listing by Compass, Corporate Broker, 110 5th Avenue, New York, NY 10011
Unavailable
Rented on 9/18/2025
Days on market
14 days
Last price change
No changes
About
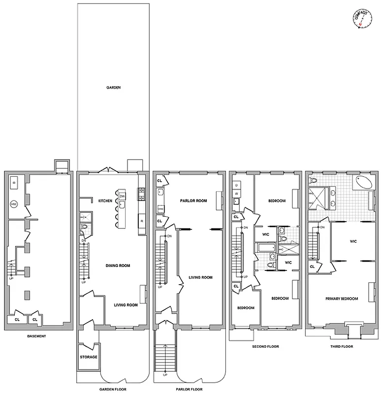
Fully renovated, historic charm and modern luxury intermingle in this architecturally-distinctive townhome. This meticulously renovated 4-story gem features exquisite interiors, high airy ceilings, a full basement and a gorgeous private patio garden for the ultimate outdoor oasis.
Reserved with original details abound, rich parquet floors, exposed wood beams, pocket shutters and doors, pier mirror, and 6 classic decorative fireplaces and most importantly, wired for WIFI throughout.
Policies
Sorry, policy info isn’t available right now. Check back later.
Home features
Central air
Dishwasher
Hardwood floors
Private outdoor space
Garden
Washer/dryer
Building amenities
Services and facilities
Laundry in building
Wellness and recreation
No info on wellness and recreation
Shared outdoor space
No info on shared outdoor space
About the building
290 Jefferson Avenue
290 Jefferson Avenue, Brooklyn, NY 11216
2 units
4 stories
1899 built
Property history
Prices shown are base rent only. For total monthly price and additional fees, see .
| Date | Base rent | Event |
|---|---|---|
9/18/2025 | $10,900 | Rented by Compass |
9/4/2025 | $10,900 | Listed by Compass |
Past listing photos
Sign in to take a closer look at how this home compares to similar homes.
Explore Bedford-Stuyvesant
Transit
| Location | Distance |
|---|---|
ACat Nostrand Av | 0.27 miles |
ACat Kingston–Throop | 0.36 miles |
LIRRat Nostrand Avenue | 0.37 miles |
Gat Bedford–Nostrand Avs | 0.52 miles |
ACSat Franklin Av | 0.52 miles |
About Bedford-Stuyvesant
Rental prices shown are base rent before any fees. Visit listings for cost and fees breakdown.
SalesMedian asking price
5 beds
$2.75M
RentalsMedian asking base rent
5 beds
$5,100
Bedford-Stuyvesant is a vast Brooklyn neighborhood filled with historic brownstones. Fans of Victorian architecture will appreciate the striking abodes in the leafy historic district.
Learn more about Bedford-StuyvesantSimilar homes
Prices shown are base rent only and don't include any fees. Visit each listing to see a complete cost breakdown.
Similar Homes looks at ad spend and other factors like location, price, and number of beds and baths.
































































































































































