- ft²
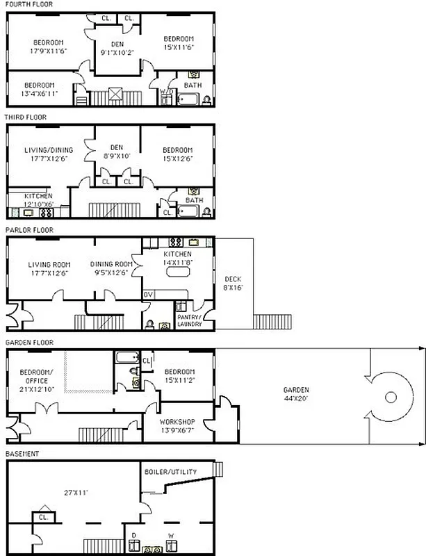
10 rooms
6 beds
3.5 baths
Two-family home
- Park Slope
recorded sale
Sold on 8/29/2017
Verified by closing records
Last listed for $3,395,000
Seller's agent
This home has been saved by 76 users.
Listing by Corcoran, Limited Liability Broker, 319 Wall Street, Kingston, NY 12401 | Brokerage Listing ID: 3657084
Common charges
Not applicable
Estimated payment
$17,781/mo
Legal disclaimerAll calculations are estimates provided by StreetEasy for informational purposes only. Actual amounts or financing terms may vary. Please contact your mortgage provider for specifics.Taxes
$539/mo
Tax abatement
No info
About
Sellerâs agent
Buyerâs agent
description
The Right Place at the Right Time! Here it is - a lovely and well-laid-out, two-family townhouse in the heart and soul of Park Slope. Currently configured as a double duplex, it has a high end, three-and-a-half bedroom rental upstairs, and a flexible and elegant duplex leading to a serenely xeriscaped zen garden, down.
Policies
Sorry, policy info isnât available right now. Check back later.
Home features
No info on home features
Building amenities
No info on building amenities
About the building
294 6th Avenue
294 6th Avenue, Brooklyn, NY 11215
2 units
3 stories
1901 built
For sale
0 available units for saleFor rent
0 available units for rentDocuments and permits
View documents and permitsProperty history
- Price Change: â $100,000 (-2.9%) on 1/2/17
- Days on market: 146 daysThis is the number of days the listing has been on StreetEasy.
| Date | Price | Event |
|---|---|---|
8/29/2017 | $3,375,000 | Sold by Corcoran |
8/29/2017 | $3,395,000 | No longer available |
7/9/2017 | $3,395,000 | In contract |
5/28/2017 | $3,395,000 | No longer available |
3/22/2017 | $3,395,000 | In contract |
Past listing photos
Sign in to take a closer look at how this home compares to similar homes.
Explore Park Slope
Transit
| Location | Distance |
|---|---|
Rat Union St | 0.34 miles |
Fat 7th Av | 0.38 miles |
FGRat 9th St | 0.44 miles |
Fat 4th Av | 0.49 miles |
23at Grand Army Plaza | 0.52 miles |
About Park Slope
Rental prices shown are base rent before any fees. Visit listings for cost and fees breakdown.
SalesMedian asking price
6 beds
$4.65M
Park Slope has a tranquil, easygoing vibe and can almost feel suburban. Strollers and children of all ages are a constant presence on sidewalks, as are shoppers patronizing local boutiques and dog walkers heading up to the park. Residents are Brooklynites through and through and tend to be socially conscious, artistically minded, and committed to their community. At night, a casual restaurant scene comes alive. For anyone looking for a night out, there are plenty of beer gardens and wine bars to patronize, especially in the South Slope, but don't go looking for dance clubs.
Learn more about Park Slope

























































































































































