$6,600
For Rent
Base rent only. For total monthly price and additional fees, see .
No longer available 8/7/2025
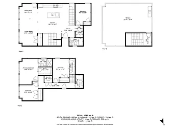
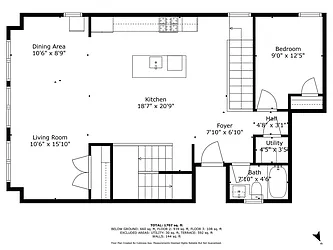
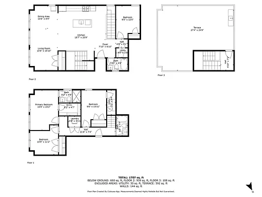
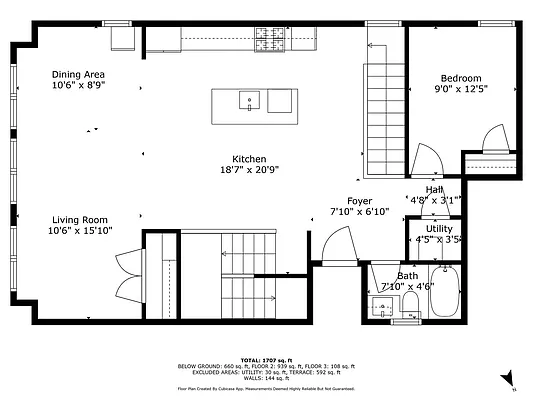
1,707 ft²
$46 per ft²
2 rooms
4 beds
3 baths
House
- The Heights
Listed By
Ozzy Rezai
Prominent Properties Sotheby's International Realty
This home has been saved by 1 user.
Listing by Prominent Properties Sotheby's International Realty | MLS #: 250015009
Unavailable
No longer available on 8/7/2025
Days on market
15 days
Last price change
No changes
About
Welcome to Unit 2 at 299 New York Avenue — a modern 4-bedroom, 3-bathroom home offering incredible New York City views from your private covered rooftop terrace, complete with an outdoor kitchen for entertaining year-round. Built in 2023, this newly constructed extra widehome features a spacious layout with high-end finishes, a full-size washer and dryer, central vacuum system, and abundant natural light throughout.
Policies
Sorry, policy info isn’t available right now. Check back later.
Home features
Central air
Dishwasher
Washer/dryer
Building amenities
Services and facilities
Parking
Garage
Wellness and recreation
No info on wellness and recreation
Shared outdoor space
No info on shared outdoor space
About the building
299 New York Avenue
299 New York Avenue, Jersey City, NJ 07307
- units
- stories
- built
For rent
0 available units for rentProperty history
Prices shown are base rent only. For total monthly price and additional fees, see .
| Date | Base rent | Event |
|---|---|---|
8/7/2025 | $6,600 | No longer available |
7/23/2025 | $6,600 | Listed by Prominent Properties Sotheby's International Realty |
6/20/2023 | $4,500 | |
6/13/2023 | $4,500 | |
8/15/2023 | $6,300 |
Sign in to take a closer look at how this home compares to similar homes.
Explore The Heights
Transit
| Location | Distance |
|---|---|
HBLRat 9th Street/Congress St | 0.33 miles |
HBLRat 2nd Street | 0.39 miles |
HBLRPATHat Hoboken Terminal | 1.15 miles |
PATHat Journal Square Station | 1.41 miles |
PATHat Pavonia/Newport Station | 1.44 miles |
Similar homes
Prices shown are base rent only and don't include any fees. Visit each listing to see a complete cost breakdown.
Similar Homes looks at ad spend and other factors like location, price, and number of beds and baths.






































































































































































































