View this home virtually
$8,250
For Rent
Base rent only. For total monthly price and additional fees, see .
Rented 9/24/2023
$7,792 net effective base rent
1 month free
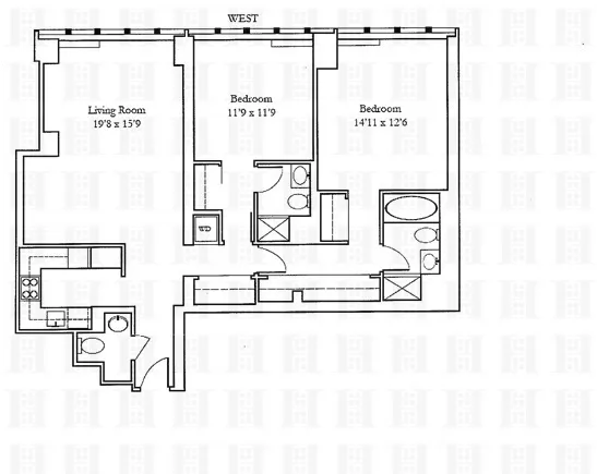
18-month lease
1,235 ft²
$80 per ft²
5 rooms
2 beds
2+ baths
Condo
- Lincoln Square
Under NYC law, you can't be charged a broker fee if you didn't hire a broker.
Listed By
This home has been saved by 100 users.
Listing by A & I Broadway, Corporate Broker, 150 Broadway Ste, New York, NY 10038
Unavailable
Rented on 9/24/2023
Days on market
99 days
Last price change
No changes
About
Exquisite 2 Bedroom, 2.5 Bath Apartment with Breathtaking Hudson River Sunset Views
Indulge in the splendor of this immaculate 2 Bedroom, 2.5 Bath apartment, ideally situated on a 42nd floor within the prestigious Three Lincoln Center. Boasting an abundance of natural light, this tastefully renovated residence offers captivating vistas of the Hudson River, enhancing the allure of its elegant ambiance.
Policies
Pets allowed
Home features
Dishwasher
Hardwood floors
View
City, Skyline, Water
Washer/dryer
Building amenities
Services and facilities
Concierge
Doorman
Elevator
Live-in super
Wellness and recreation
Gym
Swimming pool
Shared outdoor space
No info on shared outdoor space
About the building
3 Lincoln Center
160 West 66th Street, New York, NY 10023
347 units
45 stories
- built
Property history
Prices shown are base rent only. For total monthly price and additional fees, see .
| Date | Base rent | Event |
|---|---|---|
9/24/2023 | $8,250 | Rented by A & I Broadway |
9/24/2023 | $8,250 | In contract |
6/17/2023 | $8,250 | Listed by A & I Broadway |
4/26/2021 | $6,950 | |
4/17/2021 | $6,950 |
Past listing photos
Sign in to take a closer look at how this home compares to similar homes.
Explore Lincoln Square
Transit
| Location | Distance |
|---|---|
1at 66th St–Lincoln Center | 0.1 miles |
123at 72nd St | 0.33 miles |
ABCD1at 59th St–Columbus Circle | 0.35 miles |
BCat 72nd St | 0.38 miles |
NRWat 57th St–7th Av | 0.62 miles |
About Lincoln Square
Rental prices shown are base rent before any fees. Visit listings for cost and fees breakdown.
SalesMedian asking price
2 beds
$2.22M
RentalsMedian asking base rent
2 beds
$8,737
Named after and defined by the Lincoln Center for the Performing Arts, Lincoln Square is home to the New York Philharmonic, the New York City Ballet and the Metropolitan Opera, among many other cultural institutions. The neighborhood blends the prewar architecture and and style of the Upper West Side with modern, tall residential buildings. Great subway access at Columbus Circle and proximity to Midtown make this neighborhood popular with those looking to be in the center of it all.
Learn more about Lincoln SquareSimilar homes
Prices shown are base rent only and don't include any fees. Visit each listing to see a complete cost breakdown.
Similar Homes looks at ad spend and other factors like location, price, and number of beds and baths.

















































































































































































































