$7,500
For Rent
Base rent only. For total monthly price and additional fees, see .
Rented 11/1/2024
1,031 ft²
$87 per ft²
5 rooms
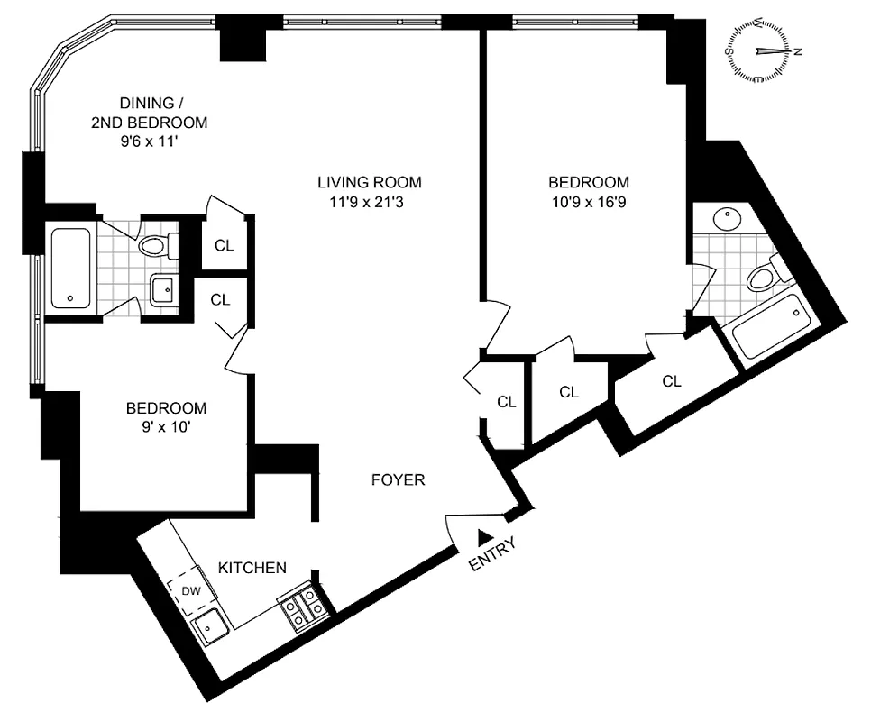
2 beds
2 baths
Condo
- Lincoln Square
Under NYC law, you can't be charged a broker fee if you didn't hire a broker.
Listed By
This home has been saved by 55 users.
Listing by Brown Harris Stevens, Real Estate Principal Office, 445 Park Avenue, New York, NY 10022
Unavailable
Rented on 11/1/2024
Days on market
17 days
Last price change
No changes
About
Excellent opportunity! Located in Lincoln Square, this home has 2 bedrooms and 2 full bathrooms with a separate home office/den. The sun-flooded, south-west facing unit has many windows and the living is very spacious. The unit comes with hardwood floors, abundant closet space, stainless kitchen appliances and a washer/dryer (combo). The marble bathroom has great storage space.
Policies
Pets allowed
Cats and dogs allowed
Home features
Central air
Dishwasher
Hardwood floors
View
City
Washer/dryer
Building amenities
Services and facilities
Bike room
Doorman
Full-time
Elevator
Live-in super
Wellness and recreation
Children's playroom
Gym
Swimming pool
Shared outdoor space
Roof deck
About the building
30 Lincoln Plaza
30 West 63rd Street, New York, NY 10023
471 units
33 stories
1979 built
Property history
Prices shown are base rent only. For total monthly price and additional fees, see .
| Date | Base rent | Event |
|---|---|---|
11/1/2024 | $7,500 | Rented by Brown Harris Stevens |
10/18/2024 | $7,500 | In contract |
10/1/2024 | $7,500 | Listed by Brown Harris Stevens |
11/27/2022 | $6,500 | |
11/15/2022 | $6,500 |
Past listing photos
Sign in to take a closer look at how this home compares to similar homes.
Explore Lincoln Square
Transit
| Location | Distance |
|---|---|
ABCD1at 59th St–Columbus Circle | 0.11 miles |
1at 66th St–Lincoln Center | 0.18 miles |
NRWat 57th St–7th Av | 0.36 miles |
BCat 72nd St | 0.37 miles |
Fat 57th St | 0.49 miles |
About Lincoln Square
Rental prices shown are base rent before any fees. Visit listings for cost and fees breakdown.
SalesMedian asking price
2 beds
$2.2M
RentalsMedian asking base rent
2 beds
$9,219
Named after and defined by the Lincoln Center for the Performing Arts, Lincoln Square is home to the New York Philharmonic, the New York City Ballet and the Metropolitan Opera, among many other cultural institutions. The neighborhood blends the prewar architecture and and style of the Upper West Side with modern, tall residential buildings. Great subway access at Columbus Circle and proximity to Midtown make this neighborhood popular with those looking to be in the center of it all.
Learn more about Lincoln SquareSimilar homes
Prices shown are base rent only and don't include any fees. Visit each listing to see a complete cost breakdown.
Similar Homes looks at ad spend and other factors like location, price, and number of beds and baths.


































































































































































































































































































































