$3,950
For Rent
Base rent only. For total monthly price and additional fees, see .
1,200 ft²
$39 per ft²
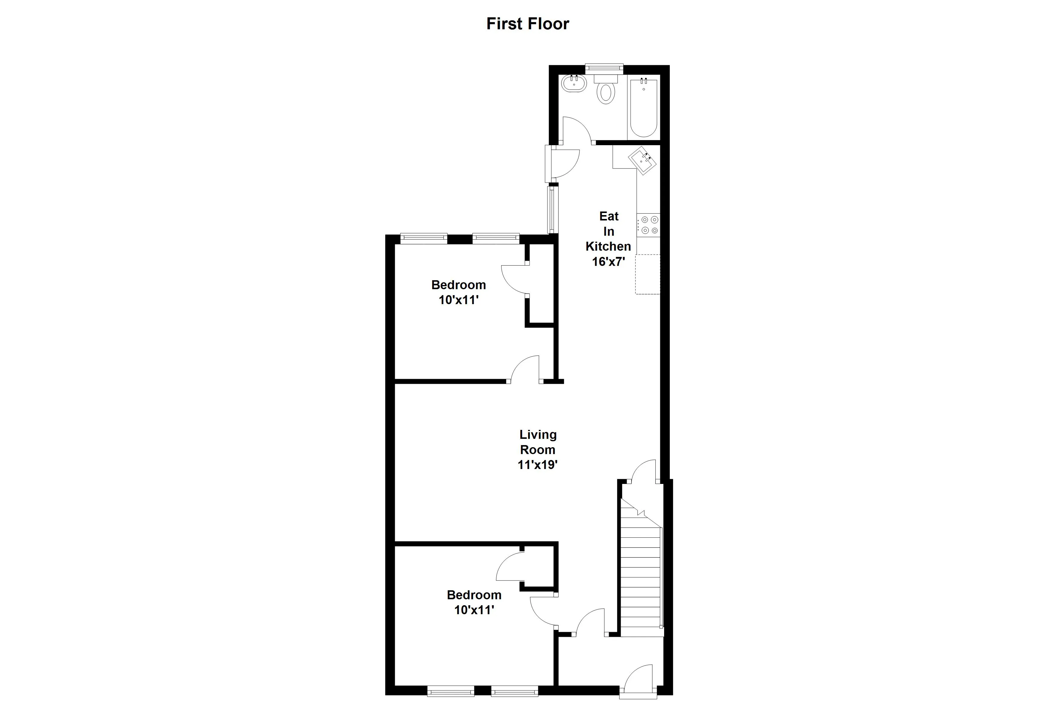
5 rooms
2 beds
2 baths
Two-family home
- Bushwick
Under NYC law, you can't be charged a broker fee if you didn't hire a broker.
Listed By
This home has been saved by 10 users.
Listing by Crifasi Real Estate, Corporate Broker, 313 Graham Avenue, Brooklyn, NY 11211
Available
Available now
Days on market
11 days
Last price change
No changes
About
This tastefully renovated duplex spans the first floor and basement of a well-maintained brick two-family in East Bushwick, just one block from the Halsey L train and six blocks from the Halsey J-Z. The home has been recently refreshed throughout and features a spacious layout with two bedrooms, two full bathrooms, washer/dryer connection, and exclusive use of the private driveway, attached one-car garage, and large backyard.
Policies
Sorry, policy info isn’t available right now. Check back later.
Home features
Central air
Dishwasher
Private outdoor space
Garden
Building amenities
Services and facilities
Parking
Garage
Wellness and recreation
No info on wellness and recreation
Shared outdoor space
Courtyard
About the building
309 Covert Street
309 Covert Street, Brooklyn, NY 11237
2 units
2 stories
1935 built
Property history
Prices shown are base rent only. For total monthly price and additional fees, see .
| Date | Base rent | Event |
|---|---|---|
11/24/2025 | $3,950 | Listed by Crifasi Real Estate |
7/8/2018 | $2,650 | |
7/5/2018 | $2,650 | Price decreased by 4% |
7/5/2018 | $2,750 |
Sign in to take a closer look at how this home compares to similar homes.
Explore Bushwick
Transit
| Location | Distance |
|---|---|
| 0.21 miles |
| 0.29 miles |
| 0.51 miles |
| 0.69 miles |
| 0.69 miles |
About Bushwick
Rental prices shown are base rent before any fees. Visit listings for cost and fees breakdown.
SalesMedian asking price
2 beds
$899K
RentalsMedian asking base rent
2 beds
$3,400
Bushwick has seen a lot of change over the years. In the early 1900s, it was known for its thriving distilleries and breweries. After those industries declined, it experienced a long period of blight through the 1970s and 1980s. Now the neighborhood is seeing a renaissance, as artists pushed out of Williamsburg and elsewhere move in and raise property values. Bushwick offers unconventional living spaces: The housing market is full of converted lofts in old factories, sometimes with great access to outdoor space.
Learn more about BushwickSimilar homes
Prices shown are base rent only and don't include any fees. Visit each listing to see a complete cost breakdown.
Similar Homes looks at ad spend and other factors like location, price, and number of beds and baths.

































































































































