$19,500
For Rent
Base rent only. For total monthly price and additional fees, see .
No longer available 9/28/2017
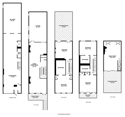
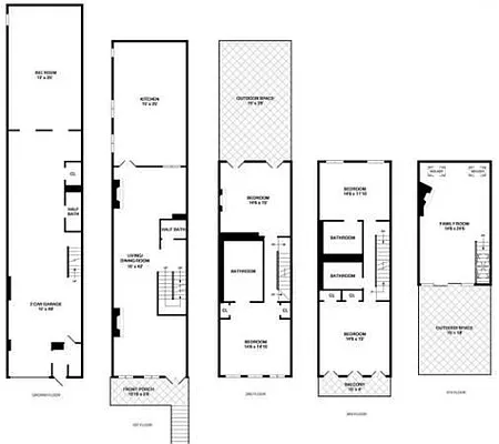
4,182 ft²
$55 per ft²
8 rooms
4 beds
4.5 baths
House
- Lenox Hill
Under NYC law, you can't be charged a broker fee if you didn't hire a broker.
Listed By
This home has been saved by 6 users.
Listing by Aventana, Limited Liability Broker, 387 Park Avenue South, New York, NY 10016 | Brokerage Listing ID: 55622
Unavailable
No longer available on 9/28/2017
Days on market
18 days
Last price change
No changes
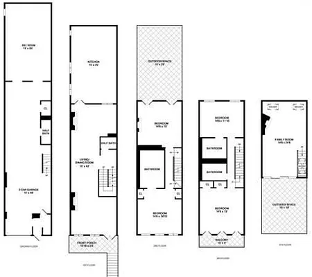
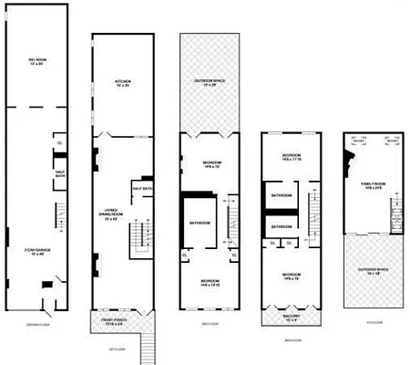
About
*TROPHY PROPERTY
* RECENTLY RENOVATED X AMAZING PRICE
*Single-family 5 Story Upper East Side Townhouse
*2 Car Garage : NEVER PAY FOR PARKING AGAIN
*4 bedrooms, Spectacular Layouts
*4.5 Exquisite spa-like bathrooms
*4 fireplaces
*State-of-the-art, eat-in windowed chef's kitchen
*Sleek brick Flooring in Oversized Eat in Kitchen
*3 outdoor Spaces
*1 Solarium
*Massive wine cooler
*Custom cabinetry
*Top-of-the-line...
Policies
Sorry, policy info isn’t available right now. Check back later.
Home features
Dishwasher
Fireplace
Private outdoor space
Patio, Terrace
Washer/dryer
Building amenities
Services and facilities
Parking
Garage
Storage space
Wellness and recreation
Gym
Shared outdoor space
Deck
About the building
310 East 69th Street
310 East 69th Street, New York, NY 10021
1 unit
3 stories
1899 built
Property history
Prices shown are base rent only. For total monthly price and additional fees, see .
| Date | Base rent | Event |
|---|---|---|
7/18/2024 | $25,000 | |
7/11/2024 | $25,000 | |
6/3/2024 | $25,000 | Price decreased by 16% |
4/26/2024 | $29,800 | |
11/3/2017 | $19,500 |
Past listing photos
Sign in to take a closer look at how this home compares to similar homes.
Explore Lenox Hill
Transit
| Location | Distance |
|---|---|
Qat 72nd St | under 500 feet |
6at 68th St–Hunter College | 0.25 miles |
FQat Lexington Av/63rd St | 0.38 miles |
NRW456at Lexington Av/59th St | 0.45 miles |
6at 77th St | 0.48 miles |
Similar homes
Prices shown are base rent only and don't include any fees. Visit each listing to see a complete cost breakdown.
Similar Homes looks at ad spend and other factors like location, price, and number of beds and baths.





















































































































































