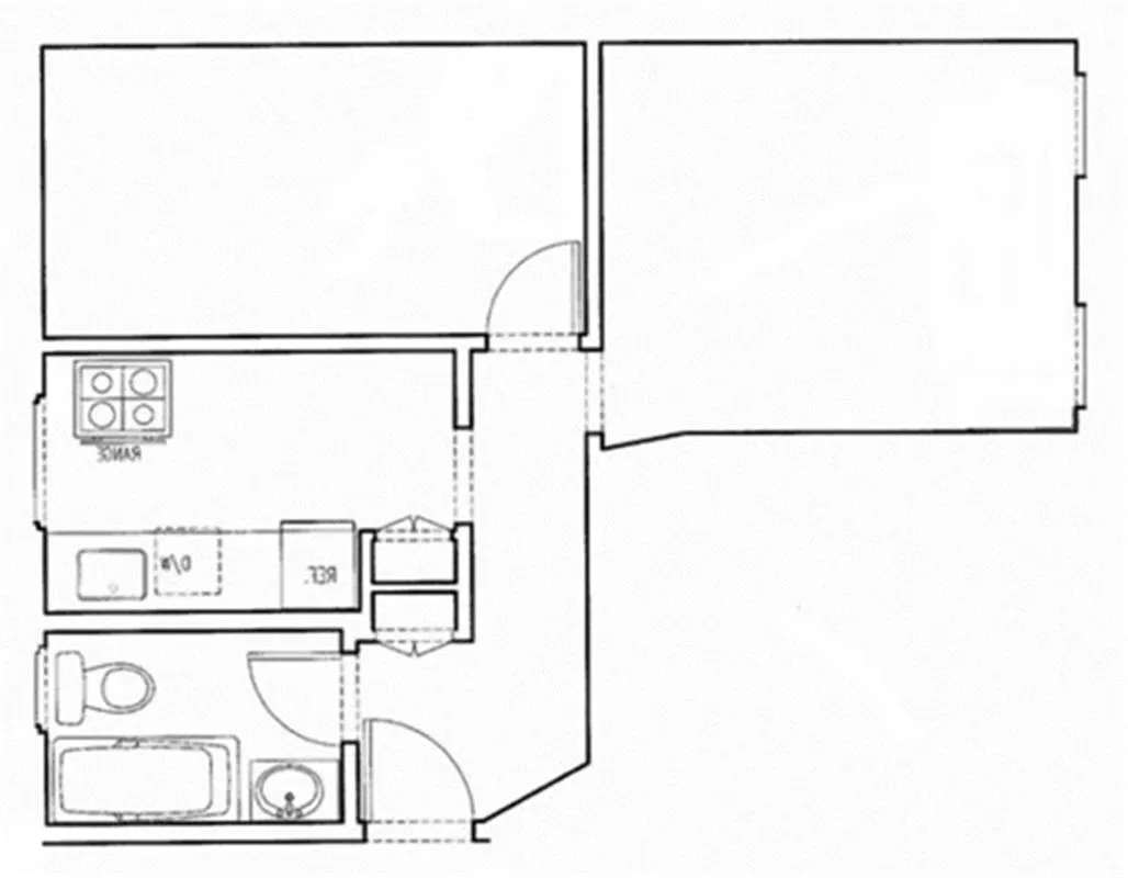
650 ft²
$646 per ft²
3 rooms
1 bed
1 bath
Co-op
- Morningside Heights
recorded sale
Sold on 12/30/2016
Verified by closing records
Last listed for $425,000
Seller's agent
This home has been saved by 57 users.
Listing by Douglas Elliman, Limited Liability Broker, 1995 Broadway, New York, NY 10023 | Brokerage Listing ID: 2394838
Maintenance fees
$508/mo
Estimated payment
$2,618/mo
Legal disclaimerAll calculations are estimates provided by StreetEasy for informational purposes only. Actual amounts or financing terms may vary. Please contact your mortgage provider for specifics.Taxes
Included in maintenance fees
Tax abatement
No info
About
Seller’s agent
Buyer’s agent
description
Beautifully renovated and charming 1 bed, 1 bath coop in Morningside Heights adjacent to The Manhattan School of Music and across the street from Columbia University's Teacher College.. This pre-war 4th floor walk-up cooperative has an impeccably gut renovated kitchen with top of the line finishes, is directly across from the livingroom which allows you to cook and entertain simultanously with ease.
Policies
Co-purchase allowed
Guarantors accepted
Pets allowed
Cats and dogs allowed
Sublets allowed
Home features
Dishwasher
Building amenities
Services and facilities
Bike room
Live-in super
Wellness and recreation
No info on wellness and recreation
Shared outdoor space
No info on shared outdoor space
About the building
3115 Broadway
3115 Broadway, New York, NY 10027
36 units
6 stories
1920 built
For sale
1 available units for saleFor rent
0 available units for rentDocuments and permits
View documents and permitsProperty history
- Price Change: No changes
- Days on market: 81 daysThis is the number of days the listing has been on StreetEasy.
| Date | Price | Event |
|---|---|---|
12/30/2016 | $420,000 | Sold by Douglas Elliman |
1/3/2017 | $425,000 | No longer available |
9/1/2016 | $425,000 | In contract |
7/11/2016 | $425,000 | Listed by Douglas Elliman |
5/18/2016 | $425,000 | In contract |
Past listing photos
Sign in to take a closer look at how this home compares to similar homes.
Explore Morningside Heights
Transit
| Location | Distance |
|---|---|
1at 125th St | 0.17 miles |
1at 116th St–Columbia University | 0.37 miles |
ABCDat 125th St | 0.44 miles |
BCat 116th St | 0.65 miles |
1at 137th St–City College | 0.65 miles |
About Morningside Heights
Rental prices shown are base rent before any fees. Visit listings for cost and fees breakdown.
SalesMedian asking price
1 bed
$649.9K
RentalsMedian asking base rent
1 bed
$3,900
In many ways, Morningside Heights reminds of Park Slope or the nearby Upper West Side, especially in its ample green space, shady streets, and laid-back, homey feel. What sets Morningside Heights apart, however, is the number of colleges and universities in and near the area.
Learn more about Morningside Heights
































































































