View this home virtually
$3,799
For Rent
Base rent only. For total monthly price and additional fees, see .
Rented 7/8/2025
- ft²
3 rooms
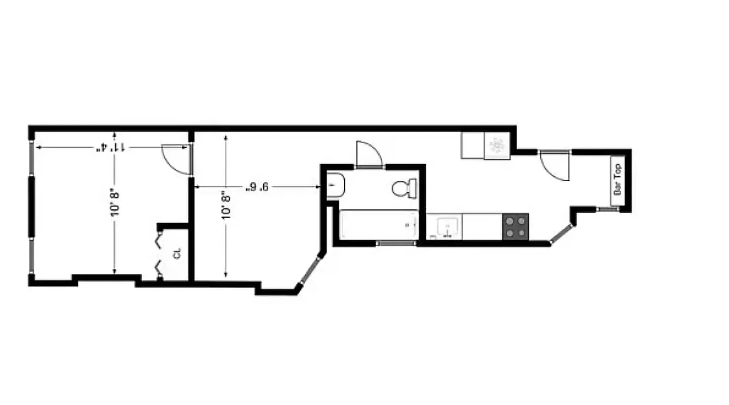
1 bed
1 bath
Rental unit
- East Village
Under NYC law, you can't be charged a broker fee if you didn't hire a broker.
Listed By
This home has been saved by 10 users.
Listing by Compass, Corporate Broker, 110 5th Avenue, New York, NY 10011
Unavailable
Rented on 7/8/2025
Days on market
6 days
Last price change
No changes
About
Welcome to 314 E 11th St, a charming residence nestled in the vibrant East Village neighborhood of Manhattan. This delightful one-bedroom, one-bathroom apartment is part of a classic lowrise building exuding pre-war charm, built in 1900.
Upon entering, you'll be greeted by a warm and inviting living space with three rooms in total to accommodate your lifestyle needs.
Policies
Sorry, policy info isn’t available right now. Check back later.
Home features
Hardwood floors
View
City
Building amenities
Services and facilities
Doorman
Virtual
Live-in super
Wellness and recreation
No info on wellness and recreation
Shared outdoor space
No info on shared outdoor space
About the building
314 East 11th Street
314 East 11th Street, New York, NY 10003
25 units
5 stories
1900 built
Property history
Prices shown are base rent only. For total monthly price and additional fees, see .
| Date | Base rent | Event |
|---|---|---|
7/8/2025 | $3,799 | Rented by Compass |
7/8/2025 | $3,799 | Listed by Compass |
6/24/2025 | $3,799 | Temporarily off market |
6/18/2025 | $3,799 | Listed by Compass |
7/1/2024 | $3,595 |
Past listing photos
Sign in to take a closer look at how this home compares to similar homes.
Explore East Village
Transit
| Location | Distance |
|---|---|
Lat 1st Av | 0.18 miles |
Lat 3rd Av | 0.23 miles |
6at Astor Place | 0.28 miles |
RWat 8th St–NYU | 0.35 miles |
LNQRW456at 14th St–Union Square | 0.37 miles |
About East Village
Rental prices shown are base rent before any fees. Visit listings for cost and fees breakdown.
SalesMedian asking price
1 bed
$799K
RentalsMedian asking base rent
1 bed
$3,995
Known and loved for being the birthplace of punk rock, the East Village is known for its vibrant restaurants and cocktail dens. During the day, however, the neighborhood slows down and has a tranquil feel. Meander down a leafy side street, and you'll happen upon plenty of prewar buildings and rusting fire escapes, which lend the East Village its old-fashioned charm.
Learn more about East VillageSimilar homes
Prices shown are base rent only and don't include any fees. Visit each listing to see a complete cost breakdown.
Similar Homes looks at ad spend and other factors like location, price, and number of beds and baths.


























































