$5,350
For Rent
Base rent only. For total monthly price and additional fees, see .
No longer available 10/1/2025
900 ft²
$71 per ft²
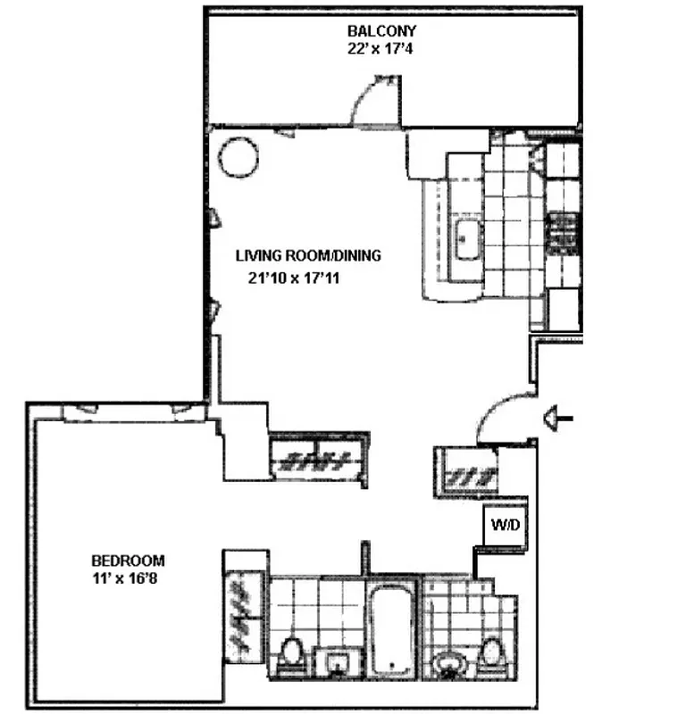
1 room
1 bed
1.5 baths
Condo
- Midtown South
Under NYC law, you can't be charged a broker fee if you didn't hire a broker.
Listed By
This home has been saved by 23 users.
Listing by Corcoran, Limited Liability Broker, 590 Madison Avenue, New York, NY 10022
Unavailable
No longer available on 10/1/2025
Days on market
8 days
Last price change
No changes
About
No Fee Apartment!!! Live in the heart of Fifth Avenue. 900SF condominium with 1 bedroom, 1.5 baths and a 140SF terrace. The oversized open kitchen is equipped with top of the line stainless steel appliances: Subzero refrigerator, Bosch dishwasher, Dacor microwave, Bosch Range/Stove. Black granite countertops and modern flat panel wood cabinetry finish the stylish look.
Policies
Pets allowed
Cats and dogs allowed
Smoke-free
Home features
Central air
Dishwasher
Hardwood floors
Private outdoor space
Balcony
Washer/dryer
Building amenities
Services and facilities
Bike room
Doorman
Full-time
Elevator
Laundry in building
Live-in super
Package room
Parking
Storage space
Wellness and recreation
Children's playroom
Gym
Media room
Swimming pool
Shared outdoor space
No info on shared outdoor space
About the building
325 5th Avenue
325 5th Avenue, New York, NY 10016
250 units
50 stories
2005 built
Property history
Prices shown are base rent only. For total monthly price and additional fees, see .
| Date | Base rent | Event |
|---|---|---|
12/31/2025 | $5,350 | No longer available |
10/1/2025 | $5,350 | Temporarily off market |
9/23/2025 | $5,350 | Listed by Corcoran |
9/22/2023 | $5,250 | |
8/30/2023 | $5,250 |
Past listing photos
Sign in to take a closer look at how this home compares to similar homes.
Explore Midtown South
Transit
| Location | Distance |
|---|---|
6at 33rd St | 0.16 miles |
BDFMNQRWat 34th St–Herald Sq | 0.18 miles |
PATHat 33rd Street Station | 0.22 miles |
RWat 28th St | 0.24 miles |
6at 28th St | 0.27 miles |
Similar homes
Prices shown are base rent only and don't include any fees. Visit each listing to see a complete cost breakdown.
Similar Homes looks at ad spend and other factors like location, price, and number of beds and baths.













































































































































