$4,495
For Rent
Base rent only. For total monthly price and additional fees, see .
No longer available 9/8/2021
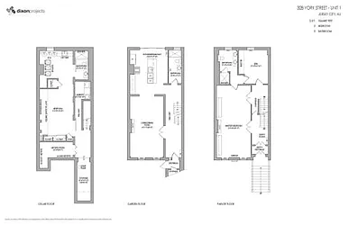
2,571 ft²
$20 per ft²
2 rooms
2 beds
3 baths
House
- Historic Downtown
Listed By
Jameel Mohammed
Hotpads Rentals
This home has been saved by 10 users.
Listing by Hotpads Rentals | Brokerage Listing ID: 4x5b8ghuh9htn-3e3eezsbexaf
Unavailable
No longer available on 9/8/2021
Days on market
6 days
Last price change
No changes
About
NO FEE + 2 MOS FREE! 2 Bed + Den | 3 Bath | 2571 SQFT | $4,495 Less than one block from Van Vorst Park, this stunning home features high-quality finishes and hardware throughout. Beginning on the garden floor, you'll enjoy a gourmet kitchen, which boasts a spacious breakfast bar, sleek cabinetry, and a Wolf gas range + hood. From here, enjoy convenient access to your private backyard.
Policies
Sorry, policy info isn’t available right now. Check back later.
Home features
No info on home features
Building amenities
No info on building amenities
About the building
328 York Street
328 York Street, Jersey City, NJ 07302
- units
- stories
- built
For rent
0 available units for rentProperty history
Prices shown are base rent only. For total monthly price and additional fees, see .
| Date | Base rent | Event |
|---|---|---|
9/8/2021 | $4,495 | No longer available |
9/2/2021 | $4,495 | Listed by Hotpads Rentals |
Sign in to take a closer look at how this home compares to similar homes.
Explore Historic Downtown
Transit
| Location | Distance |
|---|---|
HBLRat Jersey Ave. | 0.22 miles |
PATHat Grove Street Station | 0.34 miles |
HBLRat Marin Blvd. | 0.4 miles |
HBLRat Essex St. | 0.77 miles |
HBLRat Harborside | 0.78 miles |
Similar homes
Prices shown are base rent only and don't include any fees. Visit each listing to see a complete cost breakdown.
Similar Homes looks at ad spend and other factors like location, price, and number of beds and baths.
































































































































