$40,000
For Rent
Base rent only. For total monthly price and additional fees, see .
No longer available 2/4/2016
- ft²
8 rooms
6 beds
7+ baths
House
- Lincoln Square
Under NYC law, you can't be charged a broker fee if you didn't hire a broker.
Listed By
This home has been saved by 7 users.
Listing by Douglas Elliman, Limited Liability Broker, 1995 Broadway, New York, NY 10023 | Brokerage Listing ID: 2302884
Unavailable
No longer available on 2/4/2016
Days on market
43 days
Last price change
No changes
About
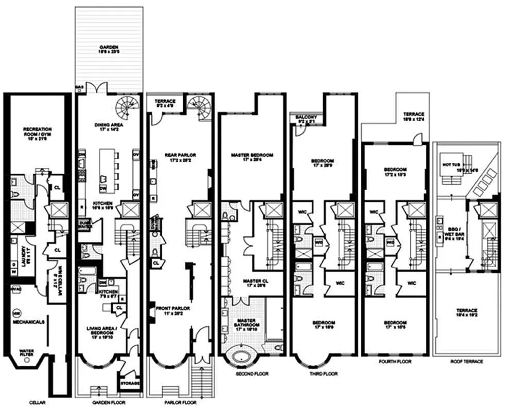
Be the first to live in this spectacular five story, nearly twenty foot wide, single family home after a nearly two year, meticulous gut renovation. You will be blown away by the soaring twelve foot ceilings, floor-to-ceiling windows and the perfect combination of restored old world details seamlessly mixed with a contemporary aesthetic.
Policies
Sorry, policy info isnât available right now. Check back later.
Home features
Central air
Fireplace
Furnished
Private outdoor space
Garden, Terrace
Building amenities
Services and facilities
Laundry in building
Wellness and recreation
Hot tub
Shared outdoor space
Deck
Roof deck
About the building
33 West 71st Street
33 West 71st Street, New York, NY 10023
1 unit
5 stories
1900 built
Property history
Prices shown are base rent only. For total monthly price and additional fees, see .
| Date | Base rent | Event |
|---|---|---|
2/4/2016 | $40,000 | No longer available |
12/23/2015 | $40,000 | Listed by Douglas Elliman |
Sign in to take a closer look at how this home compares to similar homes.
Explore Lincoln Square
Transit
| Location | Distance |
|---|---|
BCat 72nd St | under 500 feet |
123at 72nd St | 0.27 miles |
1at 66th StâLincoln Center | 0.29 miles |
BCat 81st StâMuseum of Natural History | 0.36 miles |
1at 79th St | 0.52 miles |
About Lincoln Square
Rental prices shown are base rent before any fees. Visit listings for cost and fees breakdown.
SalesMedian asking price
6 beds
$16.9M
RentalsMedian asking base rent
6 beds
$45,000
Named after and defined by the Lincoln Center for the Performing Arts, Lincoln Square is home to the New York Philharmonic, the New York City Ballet and the Metropolitan Opera, among many other cultural institutions. The neighborhood blends the prewar architecture and and style of the Upper West Side with modern, tall residential buildings. Great subway access at Columbus Circle and proximity to Midtown make this neighborhood popular with those looking to be in the center of it all.
Learn more about Lincoln SquareSimilar homes
Prices shown are base rent only and don't include any fees. Visit each listing to see a complete cost breakdown.
Similar Homes looks at ad spend and other factors like location, price, and number of beds and baths.

























































































































































