$5,500
For Rent
Base rent only. For total monthly price and additional fees, see .
Rented 7/5/2021
- ft²
5 rooms
2 beds
1 bath
Rental unit
- Boerum Hill
Under NYC law, you can't be charged a broker fee if you didn't hire a broker.
Listed By
This home has been saved by 96 users.
Listing by Corcoran, Limited Liability Broker, 1 Pierrepont Plz, Brooklyn, NY 11201
Unavailable
Rented on 7/5/2021
Days on market
18 days
Last price change
No changes
About
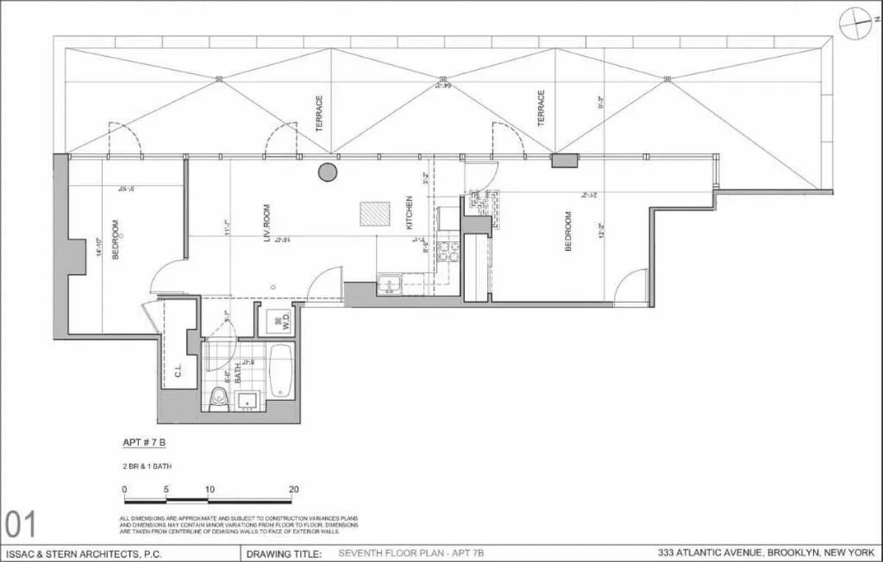
Welcome Home to 333 Atlantic Avenue! State-of-the-art residences located on Atlantic Avenue between Smith/Hoyt Streets in the heart of Boerum Hill. Beautifully constructed limestone building with 7 floors - 4 apartments on each level and 2 Penthouses on the 7th floor. Penthouse 7B has sweeping Downtown Brooklyn views, open kitchen, 2 spacious bedrooms on either end of the living room (one with a walk-in closet) and, to top it off, a decadent wrap around terrace.
Policies
Sorry, policy info isn’t available right now. Check back later.
Home features
Central air
Dishwasher
Hardwood floors
Private outdoor space
Terrace
Washer/dryer
Building amenities
Services and facilities
No info on services and facilities
Wellness and recreation
No info on wellness and recreation
Shared outdoor space
Roof deck
About the building
333 Atlantic Avenue
333 Atlantic Avenue, Brooklyn, NY 11201
22 units
7 stories
2014 built
Property history
Prices shown are base rent only. For total monthly price and additional fees, see .
| Date | Base rent | Event |
|---|---|---|
7/8/2021 | $5,500 | Rented by Corcoran |
7/5/2021 | $5,500 | Temporarily off market |
6/17/2021 | $5,500 | Listed by Corcoran |
9/5/2018 | $5,500 | |
8/13/2018 | $5,500 |
Past listing photos
Sign in to take a closer look at how this home compares to similar homes.
Explore Boerum Hill
Transit
| Location | Distance |
|---|---|
ACGat Hoyt & Schermerhorn | under 500 feet |
FGat Bergen St | 0.18 miles |
23at Hoyt St | 0.19 miles |
ACFRat Jay St–MetroTech | 0.27 miles |
BQRat DeKalb Av | 0.32 miles |
About Boerum Hill
Rental prices shown are base rent before any fees. Visit listings for cost and fees breakdown.
SalesMedian asking price
2 beds
$1.49M
RentalsMedian asking base rent
2 beds
$5,257
Energetic and inviting, Boerum Hill continues its run as one of New York City's most desirable neighborhoods, all while remaining a secret quietly shared amongst its happy residents. Its appeal and vibrancy stem from its housing stock. Handsome Greek revival and Italianate townhouses line the wide, tree-lined streets. These beautiful brick and limestone buildings have long been a mecca for Brooklynites seeking an enclave close to Downtown Brooklyn and lower Manhattan — but far from crowds and highrises.
Main drags like Bergen Street, Atlantic Avenue, and Smith Street are peppered with charming boutiques like Collier West in addition to welcoming cafes, bars, and restaurants, including Rucola, French Louie, and Bacchus, to name a few. Fans of new construction will find new condo developments too. Saint Marks Place, The Hendrick, The Boerum, and The Bergen have expanded buyers' opportunities. Renters will also find plenty of options here in a broad range of prices, from the genuinely affordable to the luxurious.
Similar homes
Prices shown are base rent only and don't include any fees. Visit each listing to see a complete cost breakdown.
Similar Homes looks at ad spend and other factors like location, price, and number of beds and baths.











































































































