$5,250,000
For Sale
No longer available 2/16/2018
- ft²
1 room
Studio
5 baths
Rental unit
- Bedford-Stuyvesant
Seller's agent
This home has been saved by 11 users.
Listing by Halstead Real Estate, 160 Seventh Avenue, Brooklyn, NY 11215 | MLS #: 17626436
Common charges
Not applicable
Estimated payment
$26,065/mo
Legal disclaimerAll calculations are estimates provided by StreetEasy for informational purposes only. Actual amounts or financing terms may vary. Please contact your mortgage provider for specifics.Taxes
No info
Tax abatement
No info
About
Seller’s agent
description
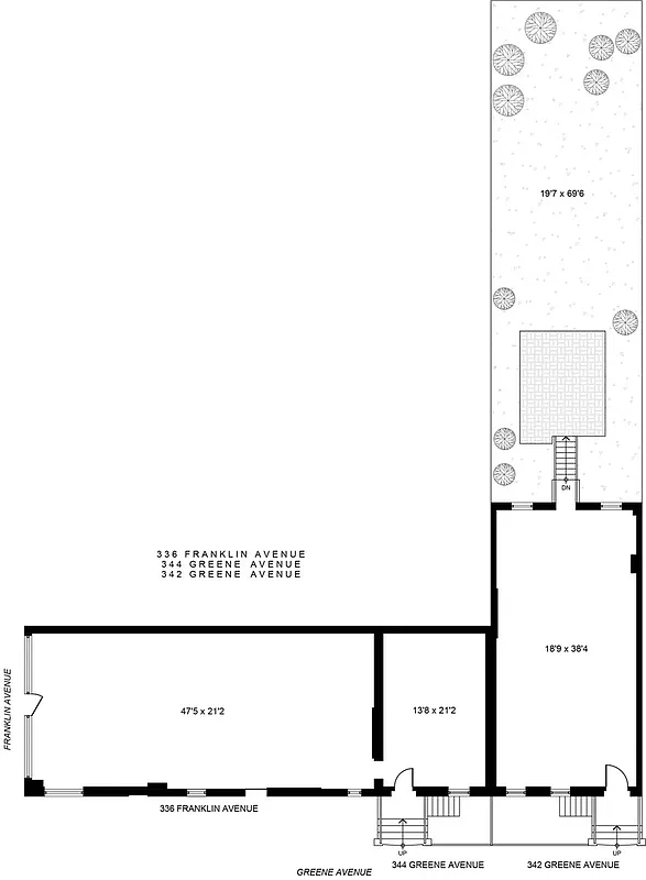
Contract Signed. Investment / Development opportunity.
336 Franklin Ave. / 342 Greene Ave-PACKAGE DEAL ONLY. On the border of Clinton Hill/Bed- Stuyvesant, lies this Unique Investment/Development Opportunity in a prime corner location.
336 Franklin Ave. is a corner mixed-use building and is currently configured as 4 over-sized residential units and 1 commercial unit. It has residential access on Greene Avenue.
Policies
Sorry, policy info isn’t available right now. Check back later.
Home features
No info on home features
Building amenities
No info on building amenities
About the building
336 Franklin Avenue
336 Franklin Avenue, Brooklyn, NY 11238
8 units
4 stories
1900 built
For sale
0 available units for saleFor rent
0 available units for rentDocuments and permits
View documents and permitsProperty history
- Price Change: No changes
- Days on market: 109 daysThis is the number of days the listing has been on StreetEasy.
| Date | Price | Event |
|---|---|---|
2/16/2018 | $5,250,000 | No longer available |
2/6/2018 | $5,250,000 | In contract |
10/20/2017 | $5,250,000 | Listed by Halstead Real Estate |
Sign in to take a closer look at how this home compares to similar homes.
Explore Bedford-Stuyvesant
Transit
| Location | Distance |
|---|---|
Gat Bedford–Nostrand Avs | 0.16 miles |
Gat Classon Av | 0.16 miles |
Gat Clinton–Washington Avs | 0.44 miles |
ACSat Franklin Av | 0.45 miles |
ASat Franklin Av | 0.46 miles |
About Bedford-Stuyvesant
Rental prices shown are base rent before any fees. Visit listings for cost and fees breakdown.
SalesMedian asking price
Studio
$907.5K
RentalsMedian asking base rent
Studio
$2,750
Bedford-Stuyvesant is a vast Brooklyn neighborhood filled with historic brownstones. Fans of Victorian architecture will appreciate the striking abodes in the leafy historic district.
Learn more about Bedford-Stuyvesant


































































































































