$7,900,000
For Sale
No longer available 3/2/2015
- ft²
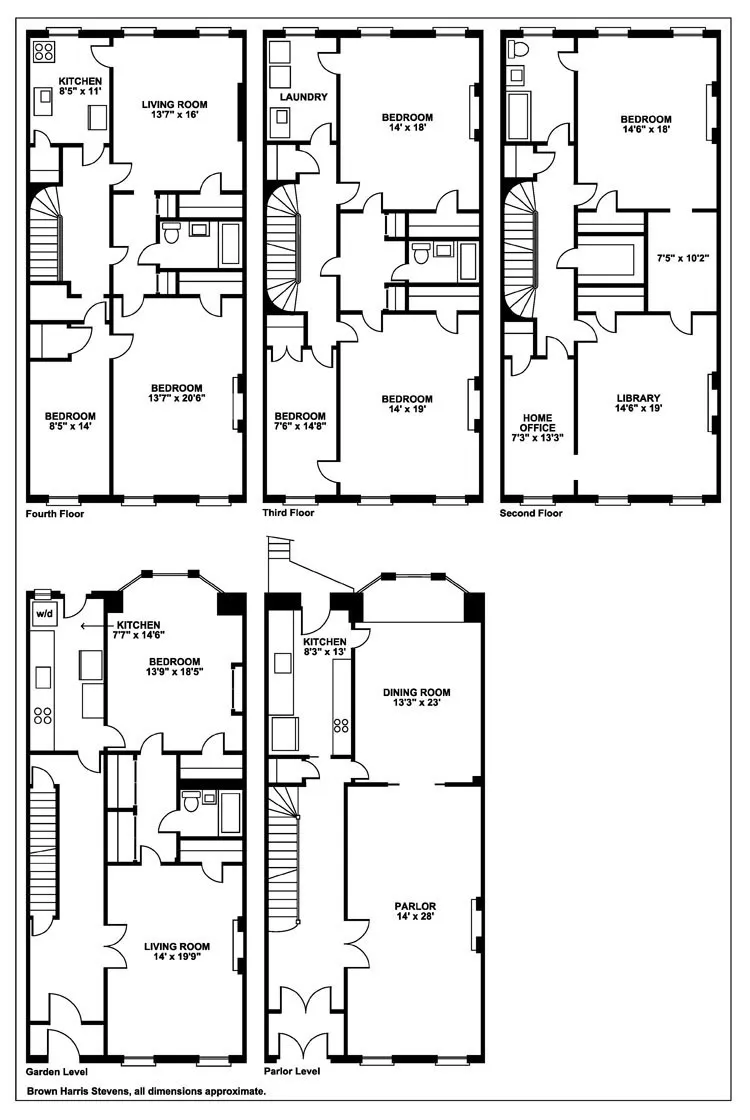
17 rooms
10 beds
4 baths
Three-family home
- Brooklyn Heights
Seller's agent
This home has been saved by 25 users.
Listing by Brown Harris Stevens, Real Estate Principal Office, 129 Montague Street, Brooklyn, NY 11201 | MLS #: 11140443
Common charges
Not applicable
Estimated payment
$40,765/mo
Legal disclaimerAll calculations are estimates provided by StreetEasy for informational purposes only. Actual amounts or financing terms may vary. Please contact your mortgage provider for specifics.Taxes
No info
Tax abatement
No info
About
Seller’s agent
description
Grace Court Masterpiece
This important 1870's Italianate style townhouse, located on a secluded cul-de-sac at the highest elevation of Brooklyn Heights, is in all ways the height of the Heights. On one of the most beautiful blocks in New York City, 34 Grace Court has been mindfully preserved and meticulously maintained by each of its few owners.
Policies
Sorry, policy info isn’t available right now. Check back later.
Home features
Fireplace
Private outdoor space
Garden
Building amenities
Services and facilities
Laundry in building
Wellness and recreation
No info on wellness and recreation
Shared outdoor space
No info on shared outdoor space
About the building
34 Grace Court
34 Grace Court, Brooklyn, NY 11201
3 units
4 stories
1915 built
For sale
0 available units for saleFor rent
0 available units for rentDocuments and permits
View documents and permitsProperty history
- Price Change: No changes
- Days on market: 166 daysThis is the number of days the listing has been on StreetEasy.
| Date | Price | Event |
|---|---|---|
5/1/2015 | $7,255,000 | |
3/2/2015 | $7,900,000 | No longer available |
9/17/2014 | $7,900,000 | Listed by Brown Harris Stevens |
Sign in to take a closer look at how this home compares to similar homes.
Explore Brooklyn Heights
Transit
| Location | Distance |
|---|---|
R2345at Borough Hall/Court St | 0.26 miles |
23at Clark St | 0.34 miles |
ACat High St | 0.49 miles |
ACFRat Jay St–MetroTech | 0.54 miles |
FGat Bergen St | 0.62 miles |
About Brooklyn Heights
Rental prices shown are base rent before any fees. Visit listings for cost and fees breakdown.
SalesMedian asking price
10 beds
$6.5M
Brooklyn Heights is known for its gorgeous housing stock and its impressive backdrop. The Promenade is the neighborhood's most celebrated and popular public space, offering just about the best views of the Brooklyn Bridge and the Manhattan skyline that can be found. There, you're likely to find locals walking their Westies, kids zooming around on scooters, and tourists excitedly snapping pics — every one of them savoring the views from this prime perch of a neighborhood.
Learn more about Brooklyn Heights

































































































































































































































