$2,950
For Rent
Base rent only. For total monthly price and additional fees, see .
Rented 8/13/2025
- ft²
1 room
Studio
1 bath
Rental unit
- Lenox Hill
Under NYC law, you can't be charged a broker fee if you didn't hire a broker.
Listed By
This home has been saved by 66 users.
Listing by Compass, Corporate Broker, 851 Madison Avenue, New York, NY 10021
Unavailable
Rented on 8/13/2025
Days on market
13 days
Last price change
No changes
About
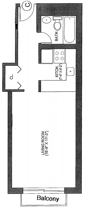
Available September 1st -- Modern Studio in Lenox Hill on the Upper East Side.
Apartment 1B, located on the first floor, is a bright & spacious studio in the heart of the Upper East Side â featuring hardwood floors, a Juliet balcony, and tons of closet space.
Centrally located in the charming Lenox Hill neighborhood of the UES, 343 E 76th St is located on a tree-lined street offering a perfect mix of...
Policies
Pets allowed
Home features
Central air
Hardwood floors
Private outdoor space
Balcony
Building amenities
Services and facilities
Elevator
Laundry in building
Wellness and recreation
No info on wellness and recreation
Shared outdoor space
No info on shared outdoor space
About the building
343 East 76th Street
343 East 76th Street, New York, NY 10021
24 units
6 stories
1920 built
Property history
Prices shown are base rent only. For total monthly price and additional fees, see .
| Date | Base rent | Event |
|---|---|---|
8/13/2025 | $2,950 | Rented by Compass |
7/31/2025 | $2,950 | Listed by Compass |
4/30/2021 | $2,300 | |
4/30/2021 | $2,300 | Price increased by 39% |
3/31/2021 | $1,650 |
Past listing photos
Sign in to take a closer look at how this home compares to similar homes.
Explore Lenox Hill
Transit
| Location | Distance |
|---|---|
Qat 72nd St | 0.23 miles |
6at 77th St | 0.28 miles |
Qat 86th St | 0.37 miles |
6at 68th StâHunter College | 0.5 miles |
456at 86th St | 0.56 miles |
Similar homes
Prices shown are base rent only and don't include any fees. Visit each listing to see a complete cost breakdown.
Similar Homes looks at ad spend and other factors like location, price, and number of beds and baths.






















































