$6,070
For Rent
Base rent only. For total monthly price and additional fees, see .
Rented 2/27/2025
$4,932 net effective base rent
3 months free
16-month lease
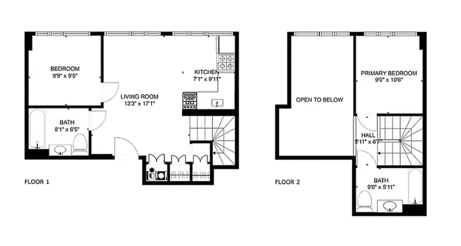
- ft²
5 rooms
2 beds
2 baths
Mixed-use building
- Williamsburg
Under NYC law, you can't be charged a broker fee if you didn't hire a broker.
Listed By
This home has been saved by 125 users.
Listing by Nooklyn NYC LLC, Real Estate Principal Office, 28 Scott Avenue Ste, Brooklyn, NY 11385
Unavailable
Rented on 2/27/2025
Days on market
20 days
Last price change
↓ $5 (-0.1%) on 1/30/25
About
Open Houses_Available / Video Available
Welcome to 344 Lorimer
Policies
Sorry, policy info isn’t available right now. Check back later.
Home features
No info on home features
Building amenities
Services and facilities
Elevator
Wellness and recreation
No info on wellness and recreation
Shared outdoor space
No info on shared outdoor space
About the building
344 Lorimer Street
344 Lorimer Street, Brooklyn, NY 11206
2 units
2 stories
2015 built
Property history
Prices shown are base rent only. For total monthly price and additional fees, see .
| Date | Base rent | Event |
|---|---|---|
2/27/2025 | $6,070 | Rented by Nooklyn NYC LLC |
2/14/2025 | $6,070 | In contract |
2/6/2025 | $6,070 | Temporarily off market |
1/30/2025 | $6,070 | Price decreased by 0% |
1/29/2025 | $6,075 | Price decreased by 0% |
Past listing photos
Sign in to take a closer look at how this home compares to similar homes.
Explore Williamsburg
Transit
| Location | Distance |
|---|---|
Gat Broadway | 0.16 miles |
JMat Lorimer St | 0.2 miles |
JMat Hewes St | 0.33 miles |
Lat Montrose Av | 0.42 miles |
GLat Lorimer St | 0.47 miles |
About Williamsburg
Rental prices shown are base rent before any fees. Visit listings for cost and fees breakdown.
SalesMedian asking price
2 beds
$1.95M
RentalsMedian asking base rent
2 beds
$5,350
Williamsburg is Brooklyn's booming epicenter with a well-deserved and worldwide reputation for being an influential hub thanks to a thriving cultural scene. Here you will find eye-catching new construction, brownstones, and prewars sitting next to historic buildings on streets dotted with restaurants, art spaces, boutiques, and more. With a Manhattan-facing waterfront (hello Domino Park!) and its large weekend markets (we're talking about you, Smorgasburg, and Artists & Fleas), the neighborhood is ideal for strolling and people watching. Another fringe benefit is Williamsburg's proximity to Manhattan via the G, L, M, and N subway lines.
Learn more about WilliamsburgSimilar homes
Prices shown are base rent only and don't include any fees. Visit each listing to see a complete cost breakdown.
Similar Homes looks at ad spend and other factors like location, price, and number of beds and baths.




































































































































































