- ft²
2 rooms
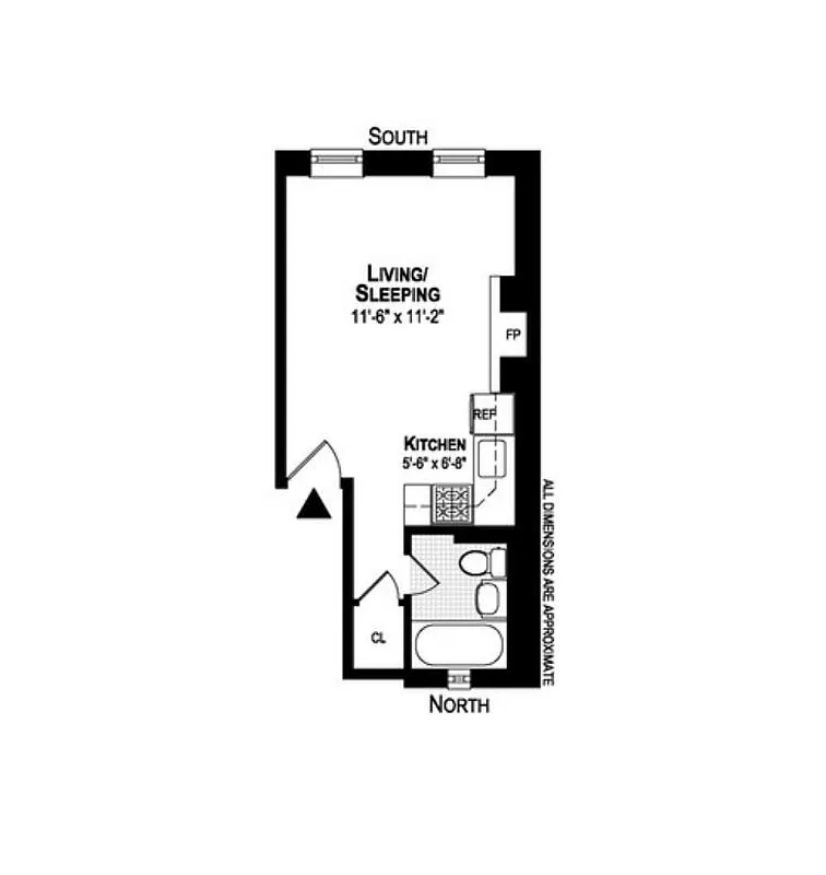
Studio
1 bath
Co-op
- West Village
Resale
reported sale
Sold on 11/7/2025
Not yet verified by closing records
Seller's agents
This home has been saved by 178 users.
Listing by Compass, Corporate Broker, 110 5th Avenue, New York, NY 10011
Maintenance fees
$994/mo
Estimated payment
$2,959/mo
Legal disclaimerAll calculations are estimates provided by StreetEasy for informational purposes only. Actual amounts or financing terms may vary. Please contact your mortgage provider for specifics.Taxes
Included in maintenance fees
Tax abatement
No info
About
Seller’s agent
description
Perched on the top floor of a professionally managed boutique co-op, this charming and bright studio offers sunny southern views over the treetops of the West Village. The living area features a cozy decorative brick fireplace, original wooden floors throughout and open corner kitchen. Amenities include central AC/Heating.
This intimate and well maintained pre-war coop, composed of three prewar buildings, offers a planted common garden and courtyard.
Policies
Co-purchase allowed
Gifts allowed
Guarantors accepted
Parents buying allowed
Pets allowed
Cats only (no dogs)
Pied-a-terre allowed
Home features
Central air
Hardwood floors
View
Garden, Skyline
Building amenities
Services and facilities
Live-in super
Wellness and recreation
No info on wellness and recreation
Shared outdoor space
Courtyard
About the building
352 West 12th Street
352 West 12th Street, New York, NY 10014
- units
- stories
- built
For sale
0 available units for saleFor rent
0 available units for rentDocuments and permits
View documents and permitsProperty history
- Price Change: ↓ $26,000 (-6.1%) on 6/5/25
- Days on market: 124 daysThis is the number of days the listing has been on StreetEasy.
| Date | Price | Event |
|---|---|---|
11/7/2025 | $399,000 | Sold by Compass |
8/6/2025 | $399,000 | In contract |
6/5/2025 | $399,000 | Price decreased by 6% |
5/14/2025 | $425,000 | Price decreased by 6% |
4/4/2025 | $450,000 | Listed by Compass |
Past listing photos
Sign in to take a closer look at how this home compares to similar homes.
Explore West Village
Transit
| Location | Distance |
|---|---|
ACELat 8th Av | 0.29 miles |
PATHat Christopher Street Station | 0.3 miles |
ACELat 14th St | 0.31 miles |
1at Christopher St–Sheridan Sq | 0.35 miles |
FLM123at 14th St | 0.35 miles |
About West Village
Rental prices shown are base rent before any fees. Visit listings for cost and fees breakdown.
SalesMedian asking price
Studio
$595K
RentalsMedian asking base rent
Studio
$4,340
Picture a romantic comedy set in New York City: The heroine invariably lives in a cozy walk-up on a cobblestone street in a neighborhood with cute boutiques and trendy cafes on every corner. This movie is set in the West Village. In reality, the West Village is just as picturesque: The neighborhood is tucked between Greenwich Village and the Hudson River and is one of the quietest and most sophisticated pockets of Downtown Manhattan. Primarily residential, with a distinct lack of office buildings, the leafy, off-the-grid streets are peaceful during the day but get livelier at night. That's when well-heeled residents, fashionistas, and literati can all be found mingling over oysters at the area's many low-lit cocktail bars.
Learn more about West Village


































































































