$3,675
For Rent
Base rent only. For total monthly price and additional fees, see .
No longer available 4/29/2019
- ft²
3 rooms
1 bed
1 bath
Rental unit
- Yorkville
Under NYC law, you can't be charged a broker fee if you didn't hire a broker.
Listed By
This home has been saved by 6 users.
Listing by Citi Habitats, Limited Liability Broker, 387 Park Avenue South, New York, NY 10016 | Brokerage Listing ID: 1880528
Unavailable
No longer available on 4/29/2019
Days on market
248 days
Last price change
No changes
About
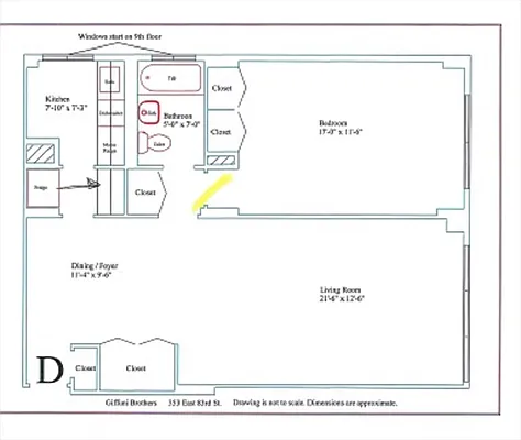
You can have it all - DOORMAN, elevator, laundry room, Roof Deck. MASSIVE 1BR apartments - drenched in sunlight, high ceilings, INCREDIBLE closet space, dishwasher. PRIME low 80s Upper East Side Location - one block from the entrance to the brand new Q Train. Email or call Heath about this and other GREAT apartments. *Photos of a similar unit in the same line *photos of a similar unit in the building *Images shown are of a model unit with similar layout and finishes.
Policies
Sorry, policy info isn’t available right now. Check back later.
Home features
No info on home features
Building amenities
Services and facilities
Doorman
Full-time
Elevator
Laundry in building
Wellness and recreation
No info on wellness and recreation
Shared outdoor space
No info on shared outdoor space
About the building
353 East 83rd Street
353 East 83rd Street, New York, NY 10028
232 units
22 stories
1967 built
Property history
Prices shown are base rent only. For total monthly price and additional fees, see .
| Date | Base rent | Event |
|---|---|---|
4/29/2019 | $3,675 | No longer available |
8/24/2018 | $3,675 | Listed by Citi Habitats |
Sign in to take a closer look at how this home compares to similar homes.
Explore Yorkville
Transit
| Location | Distance |
|---|---|
Qat 86th St | 0.12 miles |
456at 86th St | 0.36 miles |
6at 77th St | 0.47 miles |
Qat 96th St | 0.55 miles |
Qat 72nd St | 0.6 miles |
About Yorkville
Rental prices shown are base rent before any fees. Visit listings for cost and fees breakdown.
SalesMedian asking price
1 bed
$699K
RentalsMedian asking base rent
1 bed
$4,050
When George Washington commandeered the building site that would eventually become Gracie Mansion, he probably didn't imagine that this peaceful, riverside enclave would become the lively residential neighborhood it is today. Between then and now, Yorkville has seen a lot of change. Tony mansions and elevated trains went up at the turn of the century and then came down in the postwar years as a middle-class population moved in.
Now, the neighborhood is a haven of high-rise co-ops and condos interspersed with quiet rows of townhouses. The mixed housing stock makes Yorkville a practical choice for anyone seeking a slowed-down Manhattan vibe. Several avenues over from the throngs of Lexington and Third Avenues, Yorkville maintains a low-key, no-frills feel — it's a place where you'll find more diners and donut shops than upscale lounges and boutiques. This homey attitude is writ in its storefronts, where the food is kept simple and the owners are often from around the block.
Similar homes
Prices shown are base rent only and don't include any fees. Visit each listing to see a complete cost breakdown.
Similar Homes looks at ad spend and other factors like location, price, and number of beds and baths.






































































































