$2,500
For Rent
Base rent only. For total monthly price and additional fees, see .
No longer available 8/18/2024
- ft²
2 rooms
Studio
1 bath
Other type
- Hoboken
Listed By
Gina Telesco
Hotpads Rentals
This home has been saved by 20 users.
Listing by Hotpads Rentals | Brokerage Listing ID: 1x3vudb7uamut-17prs85b3vgsn
Searching with a housing voucher, like Section 8?
Unavailable
No longer available on 8/18/2024
Days on market
9 days
Last price change
No changes
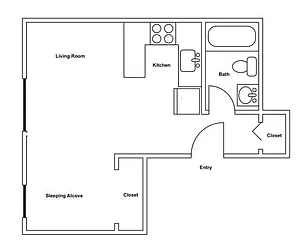
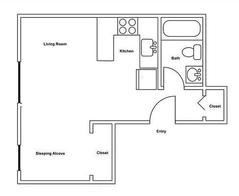
About
Amazing renovated studio with alcove in an ideal downtown Hoboken location, just steps from the Path on 1st St. This well appointed top floor unit is just two flights up and faces the back of the building for peaceful nights. High ceilings and hardwood floors throughout, with skylight for great natural light. New kitchen features soft close cabinets, stainless steel appliances, quartz counters and custom glass backsplash.
Policies
Sorry, policy info isn’t available right now. Check back later.
Home features
No info on home features
Building amenities
Sorry, building amenities aren't available right now. Check back later.
About the building
354 1st Street
354 1st Street, Hoboken, NJ 07030
- units
- stories
- built
For rent
0 available units for rentProperty history
Prices shown are base rent only. For total monthly price and additional fees, see .
| Date | Base rent | Event |
|---|---|---|
8/18/2024 | $2,500 | No longer available |
8/9/2024 | $2,500 | Listed by Hotpads Rentals |
7/8/2021 | $1,500 | |
5/26/2021 | $1,500 | Price decreased by 3% |
4/3/2021 | $1,550 |
Sign in to take a closer look at how this home compares to similar homes.
Explore Hoboken
Transit
| Location | Distance |
|---|---|
HBLRat 2nd Street | 0.42 miles |
HBLRPATHat Hoboken Terminal | 0.47 miles |
HBLRat 9th Street/Congress St | 0.73 miles |
PATHat Pavonia/Newport Station | 0.82 miles |
PATHat Grove Street Station | 1.36 miles |
Similar homes
Prices shown are base rent only and don't include any fees. Visit each listing to see a complete cost breakdown.
Similar Homes looks at ad spend and other factors like location, price, and number of beds and baths.




















































































































