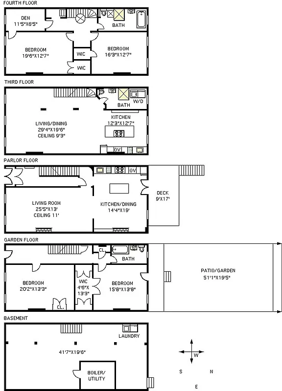
3,440 ft²
$1,321 per ft²
12 rooms
5 beds
3 baths
Three-family home
- Boerum Hill
recorded sale
Sold on 7/9/2015
Verified by closing records
Last listed for $4,595,000
Seller's agents
This home has been saved by 19 users.
Listing by Corcoran, Limited Liability Broker, 1 Pierrepont Plz, Brooklyn, NY 11201 | Brokerage Listing ID: 3428513
Common charges
Not applicable
Estimated payment
$23,850/mo
Legal disclaimerAll calculations are estimates provided by StreetEasy for informational purposes only. Actual amounts or financing terms may vary. Please contact your mortgage provider for specifics.Taxes
$540/mo
Tax abatement
No info
About
Seller’s agent
Buyer’s agent
description
A Boerum Hill double duplex town home that will make it hard to decide which duplex you will live in and which you will rent. And if you need a large single family home, 355 Pacific can be easily converted to your needs. With all the gracious details of elaborate moldings, working fireplace, pocket shutters, and the warm hardwood floors typical of lovingly cared for brownstones, add in the contemporary...
Policies
Sorry, policy info isn’t available right now. Check back later.
Home features
No info on home features
Building amenities
No info on building amenities
About the building
355 Pacific Street
355 Pacific Street, Brooklyn, NY 11217
3 units
3 stories
1901 built
For sale
0 available units for saleFor rent
0 available units for rentDocuments and permits
View documents and permitsProperty history
- Price Change: No changes
- Days on market: 2900 daysThis is the number of days the listing has been on StreetEasy.
| Date | Price | Event |
|---|---|---|
2/25/2025 | $4,995,000 | |
12/17/2024 | $5,350,000 | |
9/30/2024 | $5,350,000 | Price decreased by 3% |
7/9/2024 | $5,500,000 | |
2/10/2020 | $4,999,000 |
Past listing photos
Sign in to take a closer look at how this home compares to similar homes.
Explore Boerum Hill
Transit
| Location | Distance |
|---|---|
ACGat Hoyt & Schermerhorn | 0.15 miles |
FGat Bergen St | 0.2 miles |
23at Hoyt St | 0.24 miles |
2345at Nevins St | 0.32 miles |
BQRat DeKalb Av | 0.32 miles |
About Boerum Hill
Rental prices shown are base rent before any fees. Visit listings for cost and fees breakdown.
SalesMedian asking price
5 beds
$5.75M
Energetic and inviting, Boerum Hill continues its run as one of New York City's most desirable neighborhoods, all while remaining a secret quietly shared amongst its happy residents. Its appeal and vibrancy stem from its housing stock. Handsome Greek revival and Italianate townhouses line the wide, tree-lined streets. These beautiful brick and limestone buildings have long been a mecca for Brooklynites seeking an enclave close to Downtown Brooklyn and lower Manhattan — but far from crowds and highrises.
Main drags like Bergen Street, Atlantic Avenue, and Smith Street are peppered with charming boutiques like Collier West in addition to welcoming cafes, bars, and restaurants, including Rucola, French Louie, and Bacchus, to name a few. Fans of new construction will find new condo developments too. Saint Marks Place, The Hendrick, The Boerum, and The Bergen have expanded buyers' opportunities. Renters will also find plenty of options here in a broad range of prices, from the genuinely affordable to the luxurious.































































































































































































































































































