- ft²
4 rooms
2 beds
2 baths
Co-op
- Lenox Hill
Sponsor unit
Sponsor unitA unit being sold for the first time. It’s typically owned by the building. For condos, this is often the developer. For co-ops, this is often the building’s original owner before it went co-op.
recorded sale
Sold on 6/21/2024
Verified by closing records
Last listed for $1,650,000
Seller's agents
This home has been saved by 29 users.
Listing by Compass, Corporate Broker, 110 5th Avenue, New York, NY 10011
Maintenance fees
$2,155/mo
Estimated payment
$9,905/mo
Legal disclaimerAll calculations are estimates provided by StreetEasy for informational purposes only. Actual amounts or financing terms may vary. Please contact your mortgage provider for specifics.Taxes
Included in maintenance fees
Tax abatement
No info
About
Seller’s agent
description
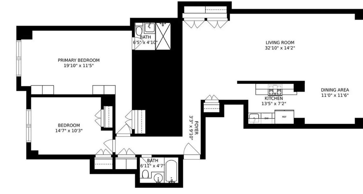
NO BOARD APPROVAL - 2 BED (Convertible 3 bed), 2 FULL BATHROOM - FULLY RENOVATED -SPONSOR UNIT with LOW maintenance that includes all utilities is now available at 360 E 72nd Street, in an ideal Upper East Side location.
This mint home offers an extra large east facing living room with a windowed dining alcove that adds versatility to the layout – the perfect place to entertain or can easily be converted to a 3rd bedroom, office or den catering to your evolving needs.
Policies
Pets allowed
Cats and dogs allowed
Pied-a-terre allowed
Smoke-free
Home features
No info on home features
Building amenities
Services and facilities
Bike room
Concierge
Doorman
Full-time
Elevator
Laundry in building
Live-in super
Parking
Valet service
Wellness and recreation
Children's playroom
Gym
Shared outdoor space
Garden
Roof deck
About the building
360 East 72nd Street
360 East 72nd Street, New York, NY 10021
460 units
35 stories
1963 built
For sale
17 available units for saleFor rent
0 available units for rentDocuments and permits
View documents and permitsProperty history
- Price Change: ↓ $100,000 (-5.7%) on 3/12/24
- Days on market: 65 daysThis is the number of days the listing has been on StreetEasy.
| Date | Price | Event |
|---|---|---|
6/21/2024 | $1,614,600 | Sold by Compass |
4/19/2024 | $1,650,000 | In contract |
3/12/2024 | $1,650,000 | Price decreased by 6% |
2/24/2024 | $1,750,000 | Price decreased by 8% |
2/14/2024 | $1,900,000 | Listed by Compass |
Past listing photos
Sign in to take a closer look at how this home compares to similar homes.
Explore Lenox Hill
Transit
| Location | Distance |
|---|---|
Qat 72nd St | 0.12 miles |
6at 68th St–Hunter College | 0.38 miles |
6at 77th St | 0.44 miles |
FQat Lexington Av/63rd St | 0.54 miles |
NRW456at Lexington Av/59th St | 0.61 miles |





























































































































