$1,495,000
For Sale
No longer available 12/1/2015
- ft²
7 rooms
3 beds
4 baths
Commercial building
- Marine Park
Seller's agents
This home has been saved by 1 user.
Listing by Corcoran, Limited Liability Broker, 125 Seventh Avenue, Brooklyn, NY 11215 | Brokerage Listing ID: 3414471
Common charges
Not applicable
Estimated payment
$8,397/mo
Legal disclaimerAll calculations are estimates provided by StreetEasy for informational purposes only. Actual amounts or financing terms may vary. Please contact your mortgage provider for specifics.Taxes
$975/mo
Tax abatement
No info
About
Seller’s agent
description
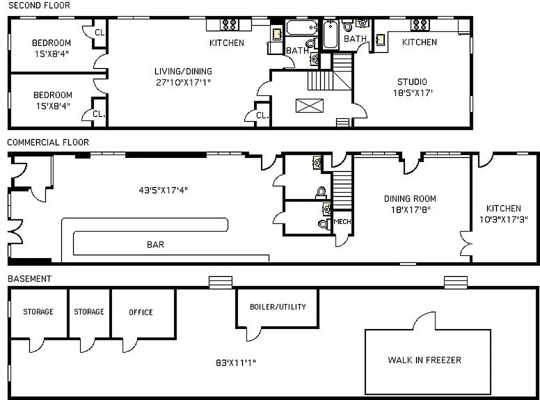
Mixed-Use Investment Building! An owner/operator's dream! An incredibly and exceptional opportunity to own not only a turn key Prime corner mixed-use building with high rental income; two apartments and also a highly successful bar and restaurant. 3622 Quentin Road was fully gut renovated in 2008 with all new plumbing, electrical, mechanicals, roof, windows, and facade to list a few of the key features.
Policies
Sorry, policy info isn’t available right now. Check back later.
Home features
No info on home features
Building amenities
No info on building amenities
About the building
3624 Quentin Road
3624 Quentin Road, Brooklyn, NY 11234
2 units
2 stories
1927 built
For sale
0 available units for saleFor rent
0 available units for rentDocuments and permits
View documents and permitsProperty history
- Price Change: No changes
- Days on market: 262 daysThis is the number of days the listing has been on StreetEasy.
| Date | Price | Event |
|---|---|---|
3/21/2017 | $1,200,000 | |
12/1/2015 | $1,495,000 | No longer available |
3/14/2015 | $1,495,000 | Listed by Corcoran |
Sign in to take a closer look at how this home compares to similar homes.
Explore Marine Park
Transit
| Location | Distance |
|---|---|
BQat Kings Highway | 1.21 miles |
BQat Av M | 1.25 miles |
25at Flatbush Av–Brooklyn College | 1.32 miles |
BQat Av J | 1.48 miles |
BQat Av U | 1.51 miles |


















































































































































































































































































