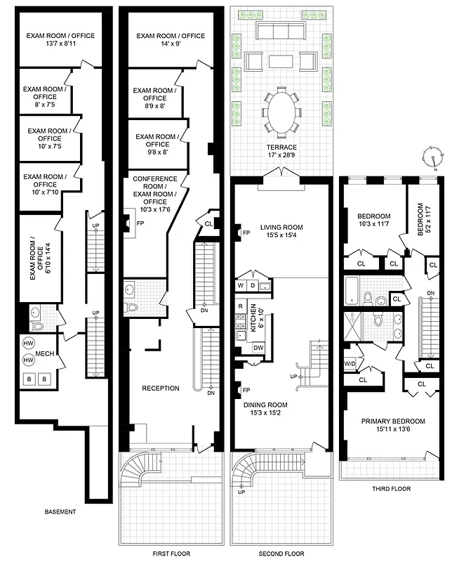
3,930 ft²
$1,092 per ft²
12 rooms
3 beds
2+ baths
Two-family home
- Lenox Hill
Resale
reported sale
Sold on 5/3/2022
Not yet verified by closing records
Seller's agent
This home has been saved by 89 users.
Listing by Brown Harris Stevens, Real Estate Principal Office, 445 Park Avenue, New York, NY 10022
Common charges
Not applicable
Estimated payment
$25,356/mo
Legal disclaimerAll calculations are estimates provided by StreetEasy for informational purposes only. Actual amounts or financing terms may vary. Please contact your mortgage provider for specifics.Taxes
$3,638/mo
Tax abatement
No info
About
Seller’s agent
description
SUPERB UPPER EAST SIDE HOME PLUS INCOME
A rare and exceptional offering of a sexy townhouse with two levels of gorgeous residential living space and fabulous outdoor space, above two levels of an independently accessed income-producing fair-market professional space below. Ideal for those who seek the splendor and freedom of townhouse living while retaining the financial benefits or personal convenience...
Policies
Sorry, policy info isn’t available right now. Check back later.
Home features
Central air
Dishwasher
Fireplace
Wood
Hardwood floors
Private outdoor space
Terrace
Washer/dryer
Building amenities
No info on building amenities
About the building
364 East 69th Street
364 East 69th Street, New York, NY 10021
2 units
2 stories
1899 built
For sale
0 available units for saleFor rent
0 available units for rentDocuments and permits
View documents and permitsProperty history
- Price Change: No changes
- Days on market: 116 daysThis is the number of days the listing has been on StreetEasy.
| Date | Price | Event |
|---|---|---|
5/3/2022 | $4,295,000 | Sold by Brown Harris Stevens |
2/22/2022 | $4,295,000 | In contract |
10/29/2021 | $4,295,000 | Listed by Brown Harris Stevens |
Past listing photos
Sign in to take a closer look at how this home compares to similar homes.
Explore Lenox Hill
Transit
| Location | Distance |
|---|---|
Qat 72nd St | 0.11 miles |
6at 68th St–Hunter College | 0.33 miles |
FQat Lexington Av/63rd St | 0.44 miles |
NRW456at Lexington Av/59th St | 0.48 miles |
6at 77th St | 0.53 miles |


















































































































































