View this home virtually
6,627 ft²
$1,433 per ft²
16 rooms
12 beds
11.5 baths
Rental unit
- Lenox Hill
Resale
reported sale
Sold on 10/8/2021
Not yet verified by closing records
Seller's agents
This home has been saved by 158 users.
Listing by Brown Harris Stevens, Real Estate Principal Office, 1934 Broadway, New York, NY 10023
Common charges
Not applicable
Estimated payment
$56,751/mo
Legal disclaimerAll calculations are estimates provided by StreetEasy for informational purposes only. Actual amounts or financing terms may vary. Please contact your mortgage provider for specifics.Taxes
$8,559/mo
Tax abatement
No info
About
Seller’s agent
description
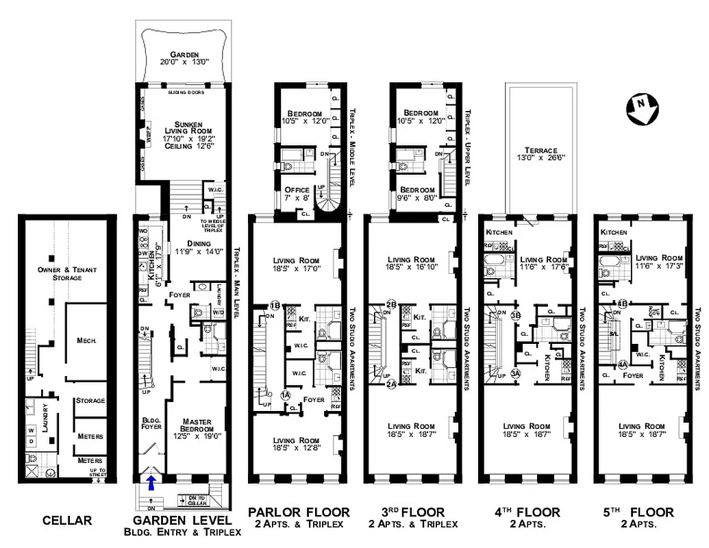
EASILY CONVERTED TO SINGLE FAMILY, VACANT AND FREE-MARKET Gold Coast Gem. Built-in 1881 for a renowned developer at the time, 38 East 75th Street was designed as one of four-row houses by prominent New York architects Arthur M. Thom and James W. Wilson. This 5-story, 20-ft wide townhome located in the Upper East Side Historic District comprises 6,627 interior square feet with an additional 1,533 square feet of buildable rights.
Policies
Sorry, policy info isn’t available right now. Check back later.
Home features
Dishwasher
Fireplace
Hardwood floors
Private outdoor space
Garden, Roof rights, Terrace
Washer/dryer
Building amenities
Services and facilities
Laundry in building
Live-in super
Storage space
Locker/cage
Wellness and recreation
No info on wellness and recreation
Shared outdoor space
Courtyard
About the building
38 East 75th Street
38 East 75th Street, New York, NY 10021
9 units
4 stories
1925 built
For sale
0 available units for saleFor rent
0 available units for rentDocuments and permits
View documents and permitsProperty history
- Price Change: ↓ $1,400,000 (-12.8%) on 10/9/20
- Days on market: 381 daysThis is the number of days the listing has been on StreetEasy.
| Date | Price | Event |
|---|---|---|
12/20/2021 | $9,500,000 | Sold by Brown Harris Stevens |
10/8/2021 | $9,500,000 | Temporarily off market |
10/9/2020 | $9,500,000 | Price decreased by 13% |
9/24/2020 | $10,900,000 | Price decreased by 5% |
3/12/2020 | $11,500,000 | Listed by Brown Harris Stevens |
Past listing photos
Sign in to take a closer look at how this home compares to similar homes.
Explore Lenox Hill
Transit
| Location | Distance |
|---|---|
6at 77th St | 0.18 miles |
6at 68th St–Hunter College | 0.37 miles |
Qat 72nd St | 0.4 miles |
456at 86th St | 0.58 miles |
Qat 86th St | 0.59 miles |






































































































