$4,450
For Rent
Base rent only. For total monthly price and additional fees, see .
Delisted 8/29/2025
- ft²
5 rooms
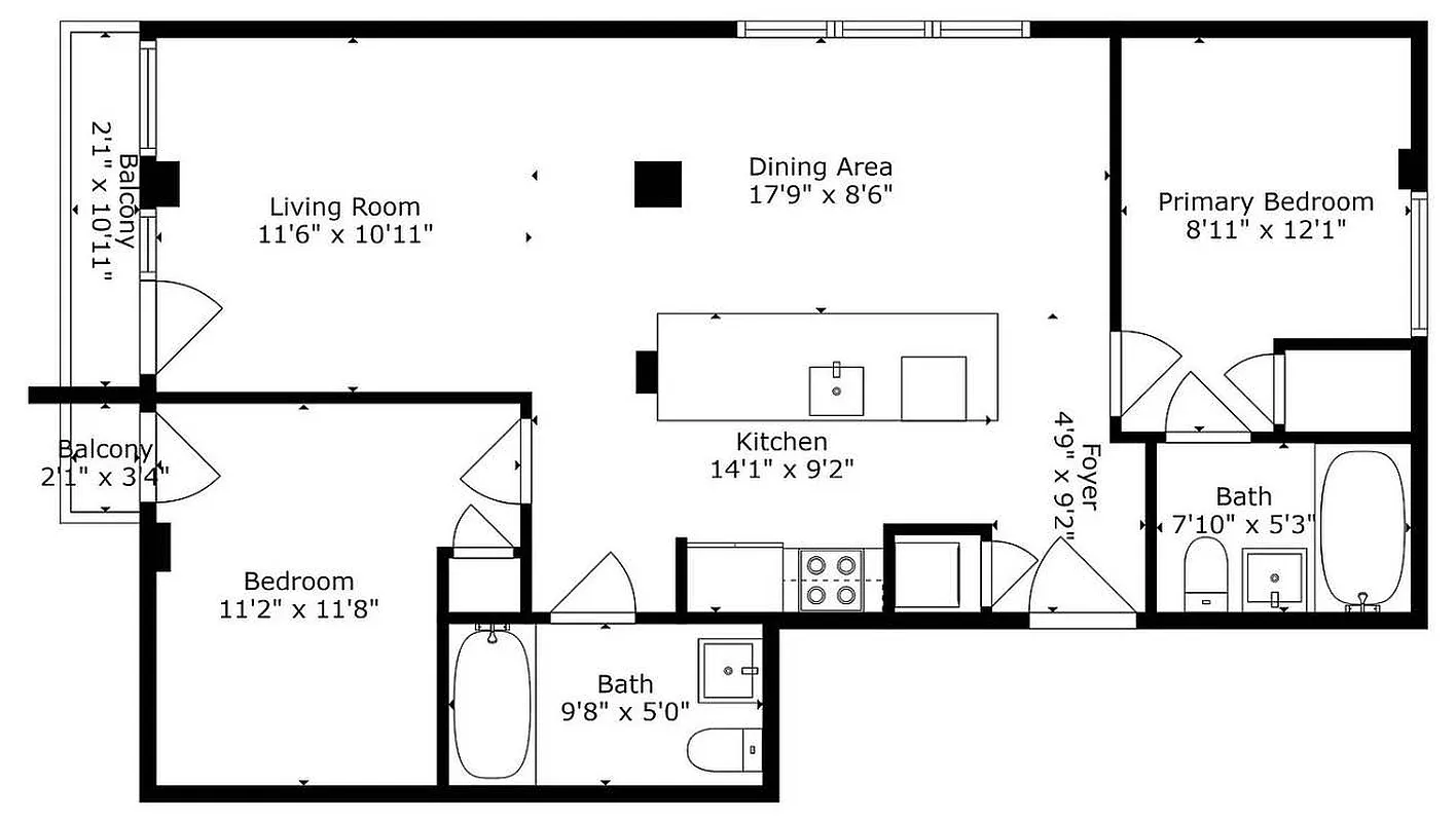
2 beds
2 baths
Rental unit
- Prospect Park South
Under NYC law, you can't be charged a broker fee if you didn't hire a broker.
Listed By
This home has been saved by 47 users.
Listing by EXR, Limited Liability Broker, 7a Halsey Street, Brooklyn, NY 11216 | Brokerage Listing ID: 4833863
Unavailable
Delisted on 8/29/2025
Days on market
11 days
Last price change
No changes
About
*SHOWINGS BY APPOINTMENT ONLY*
Welcome to 38 Stratford - This boutique luxury mid rise building is located just steps from Prospect Park! These larger than normal rental units feature spacious living rooms, high ceilings and tons of natural light.
Unit Features:
- Hardwood Floors
- High Ceilings
- Large Chef's Kitchen w/ Island
- Stainless Steal Appliances
- Washer & Dryer
- Queen Sized Bedrooms
- Private...
Policies
Sorry, policy info isnât available right now. Check back later.
Home features
Central air
Dishwasher
Hardwood floors
Private outdoor space
Balcony
View
City, Garden, Park, Skyline
Washer/dryer
Building amenities
Services and facilities
Bike room
Doorman
Virtual
Elevator
Package room
Parking
Garage
Wellness and recreation
No info on wellness and recreation
Shared outdoor space
Roof deck
About the building
38 Stratford Road
38 Stratford Road, Brooklyn, NY 11218
11 units
2 stories
1910 built
Property history
Prices shown are base rent only. For total monthly price and additional fees, see .
| Date | Base rent | Event |
|---|---|---|
8/29/2025 | $4,450 | Delisted by EXR |
8/18/2025 | $4,450 | Listed by EXR |
Sign in to take a closer look at how this home compares to similar homes.
Explore Prospect Park South
Transit
| Location | Distance |
|---|---|
Fat Fort Hamilton Parkway | 0.34 miles |
BQat Church Av | 0.36 miles |
BQat Beverly Rd | 0.37 miles |
Fat Church Av | 0.55 miles |
BQat Cortelyou Rd | 0.55 miles |
Similar homes
Prices shown are base rent only and don't include any fees. Visit each listing to see a complete cost breakdown.
Similar Homes looks at ad spend and other factors like location, price, and number of beds and baths.























































































































































































































