$8,000
For Rent
Base rent only. For total monthly price and additional fees, see .
No longer available 8/4/2025
1,000 ft²
$96 per ft²
4 rooms
2 beds
1 bath
Condo
- Fort Greene
Under NYC law, you can't be charged a broker fee if you didn't hire a broker.
Listed By
This home has been saved by 28 users.
Listing by Brown Harris Stevens, Real Estate Principal Office, 43 North Moore Street, New York, NY 10013
Unavailable
No longer available on 8/4/2025
Days on market
15 days
Last price change
No changes
About
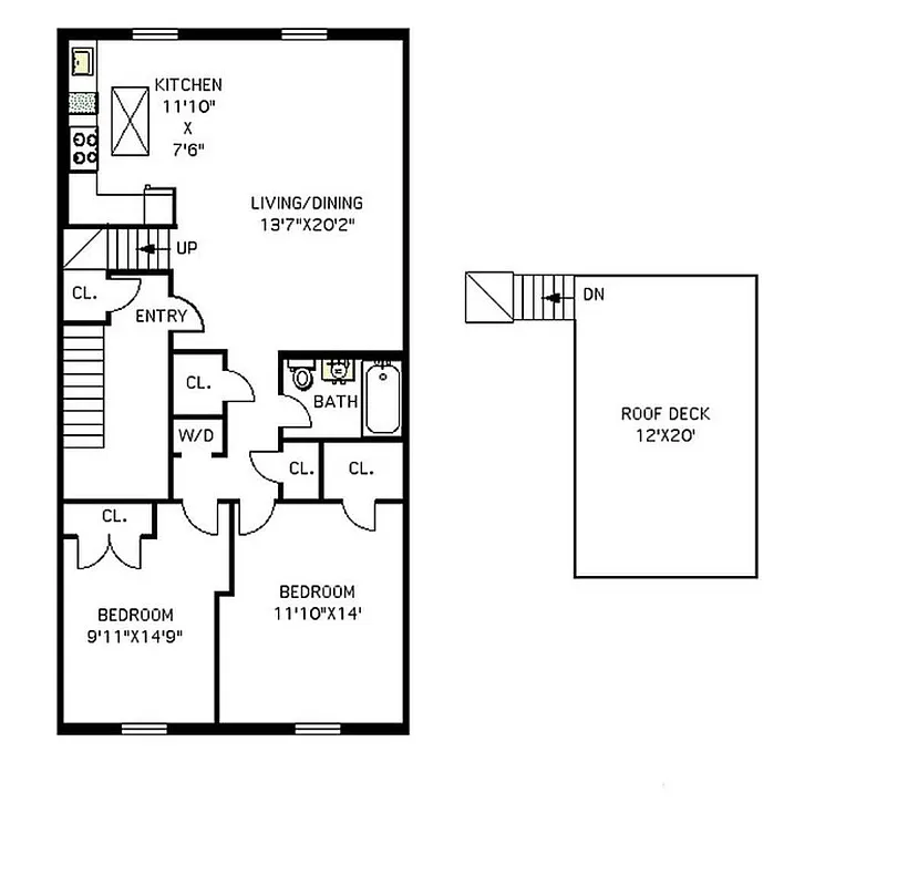
4-6 MONTH SHORT TERM FURNISHED RENTAL
On the block that NY Magazine calls the best in the city, this brownstone floorthrough 5th floor walk up apartment sits perched over Fort Greene Park with a stunning roof-top terrace accessible from the apartment via a sculptural staircase.
Recently remodeled with an architect's kitchen featuring slate counters and new appliances, the apt has a large bedroom/office and a 2nd bedroom with Vitsoe shelving.
Policies
Sorry, policy info isn’t available right now. Check back later.
Home features
Central air
Dishwasher
Furnished
Hardwood floors
Private outdoor space
Terrace
View
Park
Washer/dryer
Building amenities
Services and facilities
No info on services and facilities
Wellness and recreation
No info on wellness and recreation
Shared outdoor space
Roof deck
About the building
4 South Portland Avenue
4 South Portland Avenue, Brooklyn, NY 11217
5 units
4 stories
1930 built
Property history
Prices shown are base rent only. For total monthly price and additional fees, see .
| Date | Base rent | Event |
|---|---|---|
11/3/2025 | $8,000 | No longer available |
8/4/2025 | $8,000 | Temporarily off market |
7/29/2025 | $8,000 | Listed by Brown Harris Stevens |
7/21/2025 | $8,000 | Temporarily off market |
7/15/2025 | $8,000 | Listed by Brown Harris Stevens |
Past listing photos
Sign in to take a closer look at how this home compares to similar homes.
Explore Fort Greene
Transit
| Location | Distance |
|---|---|
Gat Fulton St | 0.17 miles |
Cat Lafayette Av | 0.21 miles |
2345at Nevins St | 0.27 miles |
BQRat DeKalb Av | 0.3 miles |
BDNQR2345at Atlantic Av–Barclays Ctr | 0.32 miles |
About Fort Greene
Rental prices shown are base rent before any fees. Visit listings for cost and fees breakdown.
SalesMedian asking price
2 beds
$1.9M
RentalsMedian asking base rent
2 beds
$6,009
With bustling flea markets, a world-renowned performance space, trendy boutiques, fabulous restaurants, and a rich literary and artistic tradition, Fort Greene attracts residents looking for a slower pace of living without sacrificing the vibrancy of urban life. Historic brownstones and row houses make up most of the available real estate, and it's common to find neighbors catching up on their stoops. Intense Brooklyn pride is in evidence on the main drag of Fulton Street, where a Notorious B.I.G. quote is painted on the side of a prominent building - "Spread love it's the Brooklyn way."
Learn more about Fort GreeneSimilar homes
Prices shown are base rent only and don't include any fees. Visit each listing to see a complete cost breakdown.
Similar Homes looks at ad spend and other factors like location, price, and number of beds and baths.















































































































































































































