View this home virtually
$6,500
For Rent
Base rent only. For total monthly price and additional fees, see .
Rented 9/9/2024
1,100 ft²
$70 per ft²
4 rooms
1 bed
1 bath
Rental unit
- Central Park South
Under NYC law, you can't be charged a broker fee if you didn't hire a broker.
Listed By
This home has been saved by 25 users.
Listing by essential NEW YORK Real Estate, Limited Liability Broker, 41 West 58th Street, New York, NY 10019
Unavailable
Rented on 9/9/2024
Days on market
51 days
Last price change
No changes
About
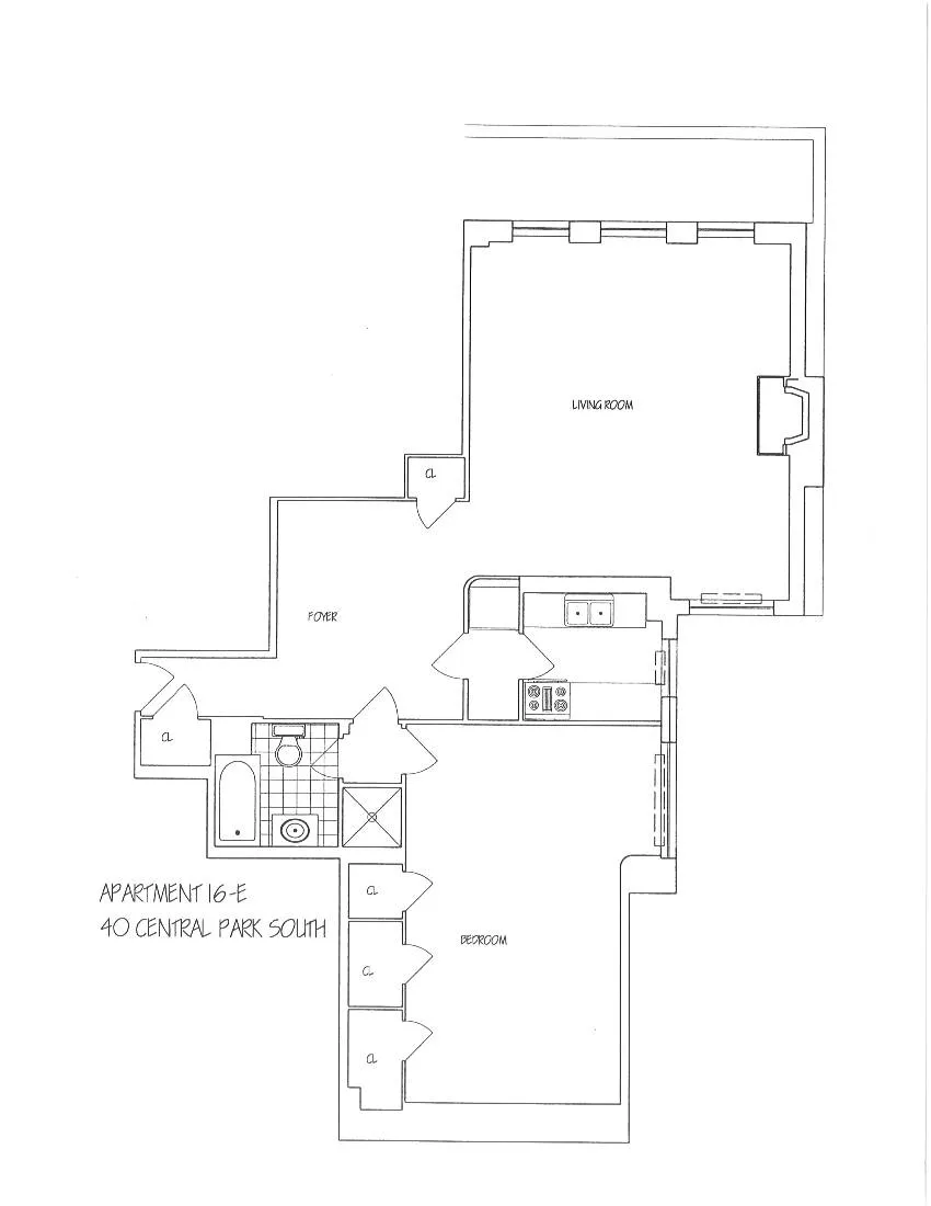
Rare One-of-a-Kind One Bedroom! Warm and ingratiating floor plan. This one bedroom is approximately 1,100 square feet. Upon entering the apartment you reach a large foyer that can also serve as a dining room for casual dining. The apartment has an oversized square living room. On the far end sits a DECORATIVE fireplace with a beautifully detailed mantle . A full south wall of windows looks out at a city scape which spells Manhattan.
Policies
Sorry, policy info isn’t available right now. Check back later.
Home features
Dishwasher
Fireplace
Decorative
Hardwood floors
Private outdoor space
Balcony
View
City
Building amenities
Services and facilities
Doorman
Elevator
Laundry in building
Live-in super
Wellness and recreation
Gym
Shared outdoor space
No info on shared outdoor space
About the building
40 Central Park South
40 Central Park South, New York, NY 10019
- units
23 stories
1941 built
Property history
Prices shown are base rent only. For total monthly price and additional fees, see .
| Date | Base rent | Event |
|---|---|---|
9/9/2024 | $6,500 | Rented by essential NEW YORK Real Estate |
7/22/2024 | $6,500 | Listed by essential NEW YORK Real Estate |
7/11/2024 | $6,500 | Rented by essential NEW YORK Real Estate |
7/9/2024 | $6,500 | Listed by essential NEW YORK Real Estate |
8/30/2023 | $6,400 |
Past listing photos
Sign in to take a closer look at how this home compares to similar homes.
Explore Central Park South
Transit
| Location | Distance |
|---|---|
Fat 57th St | under 500 feet |
NRat 59th St | under 500 feet |
NRWat 57th St–7th Av | 0.22 miles |
EMat 5th Av–53rd St | 0.32 miles |
BDEat 7th Av | 0.34 miles |
Similar homes
Prices shown are base rent only and don't include any fees. Visit each listing to see a complete cost breakdown.
Similar Homes looks at ad spend and other factors like location, price, and number of beds and baths.

































































































