$3,995
For Rent
Base rent only. For total monthly price and additional fees, see .
No longer available 5/28/2025
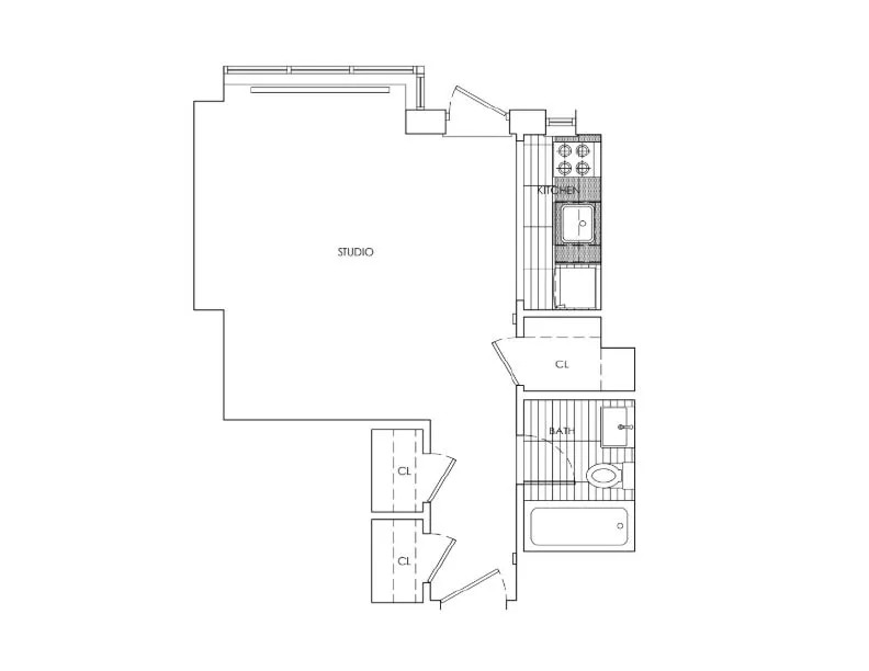
444 ft²
$107 per ft²
1 room
Studio
1 bath
Rental unit
- Sutton Place
Under NYC law, you can't be charged a broker fee if you didn't hire a broker.
Listed By
Stonehenge NYC LLC
This home has been saved by 67 users.
Listing by Stonehenge NYC LLC, Limited Liability Broker | Brokerage Listing ID: a061A00001Z9fb6QAB
Unavailable
No longer available on 5/28/2025
Days on market
57 days
Last price change
No changes
About
Bright, charming, and renovated studio with outdoor space, large double closet, and quiet environment. Stonehenge Access - Agent guided, self-guided , virtual tours available. Please visit our website for real time availability and to book your tour: www.stonehengenyc.com
Policies
No info on policies
Home features
Dishwasher
Private outdoor space
Balcony, Terrace
Building amenities
Services and facilities
Doorman
Elevator
Laundry in building
Live-in super
Wellness and recreation
Children's playroom
Gym
Shared outdoor space
No info on shared outdoor space
About the building
400 East 57th Street
400 East 57th Street, New York, NY 10022
259 units
19 stories
1931 built
Property history
Prices shown are base rent only. For total monthly price and additional fees, see .
| Date | Base rent | Event |
|---|---|---|
5/28/2025 | $3,995 | No longer available |
4/1/2025 | $3,995 | Listed by Stonehenge NYC LLC |
3/26/2024 | $3,795 | |
2/7/2024 | $3,795 | |
12/20/2022 | $3,395 |
Past listing photos
Sign in to take a closer look at how this home compares to similar homes.
Explore Sutton Place
Transit
| Location | Distance |
|---|---|
EM6at Lexington Av–53rd St | 0.33 miles |
NRW456at Lexington Av/59th St | 0.33 miles |
EM6at 51st St | 0.46 miles |
FQat Lexington Av/63rd St | 0.51 miles |
EMat 5th Av–53rd St | 0.59 miles |
Similar homes
Prices shown are base rent only and don't include any fees. Visit each listing to see a complete cost breakdown.
Similar Homes looks at ad spend and other factors like location, price, and number of beds and baths.
































































































































